Санитарные нормы для постройки туалета на дачном участке
В процессе возведения туалета на дачном участке, придерживаются следующих санитарно-гигиенических норм проектирования и строительства:
- От построек жилого назначения сооружение размещают на расстоянии минимум 12 м. Причем учитывают не только дома на собственном дачном участке, но и постройки на территории соседей.
- От источников питьевой воды клозеты размещают на расстоянии минимум 20 м. Этот норматив касается только сооружений с выгребной ямой.
- Туалет устанавливают не ближе 1,5 метра до заборов, разделяющих участки.
- Обязательно учитывают высоту грунтовых вод, чтобы избежать их загрязнения отходами. При высоком УГВ предпочтение отдают полностью герметичной системе сбора нечистот.
- При проектировании клозета с выгребной ямой обязательно продумывают способы фильтрации отходов или их удаления. В последнем случае предусматривают проезд для машины ассенизаторов.
- При выборе места расположения учитывают особенности рельефа участка.
Скворечник
Если компактные размеры туалета на даче, возводимого своими руками, имеют большое значение, то лучше выбрать конструкцию типа «скворечник». Это самое простое сооружение с односкатной крышей занимает минимум места на дачном участке. Его отличает простота изготовления, экономия строительных материалов, но небольшая комфортность. «Скворечник» чаще использую в качестве летнего варианта. Основное преимущество конструкции в том, что на крыше можно установить напорный бак.
Избушка
Довольно сложная в реализации, но красивая конструкция клозета типа «избушка». Сэкономить строительные материалы не получится из-за необходимости подрезки и подгонки размеров каждого составного элемента. Преимуществом считают полную герметичность конструкции и возможность использования в холодное время года. Сортир типа «избушка» или, как его еще называют, «теремок» пользуется популярностью за красоту, компактность и большой выбор вариантов дизайнерского оформления.
Шалаш
Это простая архитектурная конструкция с двускатной крышей, доходящей до земной поверхности. Ее отличие в устойчивости и хорошей защите от осадков. Для возведения малогабаритной постройки понадобится минимум материалов. Еще одним преимуществом является достаточное количество свободного места в нижней части, что повышает комфортность сооружения.
Домик
Теплый туалет в виде домика имеет самый разнообразный дизайн, который зависит от предпочтений хозяев. Это наиболее комфортный вариант постройки с точки зрения возможности утепления, защиты от осадков и сквозняков. Объемы земляных работ и расход материалов практически не превышают такие же показатели при возведении «скворечника», зато по прочности и долговечности конструкция намного лучше. Туалет-домик бывает одноместный и двухместный.
Туалет с душем
Туалет с унитазом и душем намного выгоднее и проще возводить, чем два отдельных сооружения. Прежде всего, объемы земляных работ будут намного меньше, ведь понадобится одна сливная яма. Также экономии материалов способствует наличие одной общей стенки и покрытия. Чаще всего клозет, совмещенный с душем, делают в виде домика с двухскатной крышей.
Используя готовые чертежи и размеры туалета на даче, можно возвести постройку собственными руками. В процессе выбора места, проектирования и строительства придерживаются требований нормативных документов, а также используют рекомендации и пошаговое руководство, приведенное выше.
Санитарно-гигиенические нормы для дачного туалета
Перед тем, как приступить к строительству, необходимо изучить пункт 7.1 СП 42.13330.2016. В своде правил описаны требования к расположению туалета и расстояниям от него до иных построек:
- до стен соседнего дома – не менее 5 м;
- до ближайшего источника водоснабжения (колодца) – не менее 25 м.
Нормы для дачного туалета
Также желательно обратить внимание на глубину заложения грунтовых вод во время весенних паводков. Если их горизонт расположен на расстоянии менее 2,5 м от поверхности, туалет с негерметичной выгребной ямой строить нельзя
В данном случае поможет лишь установка непроницаемой емкости.
Как можно украсить снаружи?
Использование небольших деталей из резного дерева при строительстве избавит от проблем с дальнейшим декором: такой домик хорош сам по себе.
На фото пример резного декора
Если полезное строение самое обычное, превратить его в оригинальный эффект ландшафта помогут рисунки: как изнутри, так и снаружи.
Чего на даче в достатке, так это зелень — почему бы не пустить стелющийся хмель или девичий виноград прямо стенам клозета? Единственный минус — красота продержится до ближайшей осени, но весной начнет обрастать снова.
На фото туалет, заросший хмелем
Чтобы не тратиться на украшение в дальнейшем, можно изначально заказать туалетную кабинку в необычной форме. Самые популярные модели — мельница, маяк или домик гномика, хоббита.
Чертеж туалета «Теремок»
Этот туалет имеет вид ромба. По сравнению с «Шалашом» строится он дольше, но и вид имеет более декоративный. При соответствующем оформлении он ничуть не испортит пейзаж.
Чертеж туалета «Теремок» с размерами
Ромбовидный домик для туалета на дачном участке смотрится неплохо. Снаружи оббить каркас можно распиленным пополам кругляком небольшого диаметра, вагонкой большой толщины, блок-хаусом, обычной доской. Если используете доску, прибивайте ее не встык, а накладывая на пару сантиметров на нижнюю, по типу еловой шишки. Можно, конечно, и встык, но внешний вид будет уже не тот…
Второй вариант: дачный туалет «Теремок» сделан со скошенными боковыми стенками.
Дачный туалет «Теремок» — второй проект с размерами
Основная загвоздка в любом небольшой деревянном туалете — хорошо закрепить двери. Дверная коробка — самая нагруженная часть, особенно с той стороны, где крепятся двери. Для скрепления стоек двери с брусьями каркаса используйте шпильки — так крепление будет надежным.
Фото-иллюстрации: строит туалет на даче своими руками. Чертежи представлены выше
Из этой несложной, в общем, конструкции можно сделать уборную в любом стиле. Например, в голландском. Отделка простая — светлый пластик, поверх которого набиты характерные балки, прокрашенные морилкой
Обратите внимание, на стеклянные вставки и на то, что крыша этого экземпляра сделана из поликарбоната. Если поликарбонат многослойный, жарко быть не должно)))
Дачный уличный туалет в виде голландского домика
Можно даже туалет «Теремок» превратить в царскую карету. Это не шутка…подтверждение на фото. Всего-то надо изменить форму и добавить несколько элементов декора, характерных для карет. Вот и получите туалет в виде кареты.
Уличный туалет-карета
Вот несколько фото процесса изготовления. В оригинале установлен биотуалет, потому постройка несложная: нет необходимости думать о яме и связанных с ней нюансах…но приспособить такую кабинку можно к любому типу…
Каркас характерной формы
Обратите внимание, форма достигнута благодаря установленным под углом доскам, а плавно сужающийся низ — подрезанными соответствующим образом опорам. На подиуме устанавливают биотуалет
На подиуме устанавливают биотуалет
Короткими досками зашивают пол, затем начинают обшивку снаружи. Вверху карета имеет тоже плавный изгиб — вырезаете из коротких досок соответствующие направляющие, прибиваете их к уже имеющимся боковым стойкам и можно начинать наружную обшивку стен.
Обшивка стен
Внутри также обшивают вагонкой. Снаружи туалет-карета выбелен, изнутри древесина имеет естественный цвет. После остается декорирование и добавление характерных деталей — вензеля, раскрашенные золотом, фонари, «золотые» цепочки, колеса.
Покраска и декорирование
«Царские» занавески и цветы. Поставлен даже рукомойник и небольшая раковина.
Вид изнутри на окна
После всех усилий имеем самый необычный в округе туалет. Мало кто может таким похвастаться…
Еще и чемоданы в багажнике…
Как сделать туалет из досок для дачи с выгребной ямой
Для возведения дачного туалета используются различные материалы. Наибольшее распространение получили доски.
Процесс строительств в данном случае выглядит следующим образом:
1. Выкапывается выгребная яма достаточно объема. Чаще всего около 2 – 2,5 кубов. Ее формируют таким образом, чтобы какая-то часть оказалась за пределами кабинки. Дно ямы стоит сделать с небольшим уклоном в сторону будущего выгреба. Чтобы обеспечить достаточный уровень герметизации, выгребную яму стоит обложить кирпичом, блоками или другими материалами;
2. Готовится фундамент по туалет. Для этой цели можно использовать песчано-цементные блоки, которые заполняют цементом и слегка заглубляют;
3. Изготавливается нижнюю обвязку туалетной кабинки. Для этой цели используется доска размером 100 на 50. Нарезаются элементы нужной длины. Обычно по 1 метру. Для соединения досок между собой используются монтажные уголки. Тщательно выверяется пространственное положение каждого элемента и равенство диагоналей. Нижнюю обмазку обрабатывают составом, предотвращающим гниение древесины;
4. Нижнюю обвязку устанавливают на фундамент, предварительно уложив гидроизоляцию, и крепят к основанию;
5. Собирают каркас будущего туалета, используя бруски размером минимум 40 на 60 мм. Высота вертикальных стоек отличается: два по 2 м, два – по 1,8 м. Это позволяет сформировать необходимый уклон у кровли. Закрепляются горизонтальные планки и собирается кровля. Для обеспечения достаточной жесткости устанавливаются раскосы;
6. К нижней обвязке крепятся брусы, на которые будут укладываться доски пола толщиной минимум 25 мм. Все элементы обрабатываются защитным средством. Каркас обшивается досками толщиной 25 см. Для крепления используют гвозди. Вырезается отверстие подходящего размера. При желании монтируется стульчак подходящей конфигурации;
7. Из брусков размером 40 на 60 мм изготавливается каркас двери. Обшивается досками. Готовая дверь навешивается на петли. Обязательно предусматривается зазор между створкой и стенками. Крепятся ручки, защелки;
8. Монтируется кровля. Укладывается кровельный материал, например, профнастил;
9. К нижней обвязки крепится доска. Выполняется обсыпка.
Как выбрать место, что следует учитывать, выбирая тип конструкции
Прежде, чем приступить к строительству, важно обратить на некоторые правила размещения строения. Так уборная на даче должна располагаться не меньше, чем за 25 м от колодцев и за 12 от жилых построек
Если участок располагается на небольшом уклоне, туалет рекомендуется расположить на понижении. Однако в этом случае стоит быть предельно осторожным, чтобы выгребная яма не оказалась расположенной на уровне залегания грунтовых вод.

Немаловажно при подборе места учитывать и розу ветров, что поможет предотвратить распространение неприятных запахов. Так, не рекомендуется выбирать участки рядом с верандами или террасами, лучше отдать предпочтение той стороне дома на которой вовсе нет окон или они не открываются
При обустройстве немаловажной деталью также является метод очистки выгребной ямы. Так важно организовать возможность подъезда к ней ассенизаторской машины

Однако прежде чем приступать к непосредственному строительству, стоит учесть также характерные особенности типов строений. Прежде всего в расчете на глубину залегания грунтовых вод. Так, если их уровень составляет менее нескольких метров стоит остановиться на пудр-клозете. Если глубина больше двух с половиной, можно обустраивать люфт-клозет или выгребную яму.
Деталей не так много, однако учесть их при выборе участка стоит. В противном случае существует опасность летним вечером наслаждаться не ароматом цветов, а другим, куда менее приятным.
Красивые идеи для вдохновения
Чтобы туалет на участке не стал зоной отчуждения, стоит позаботиться не только о его практичности и чистоте, но и внешнем виде. Например, вокруг туалета можно выстроить целую композицию из растений и другого декора.
На фото благоустройство площадки около клозета
Либо выбрать не деревенский, а современный стиль: прямые формы, монохромная палитра в наружней и внутренней отделке.
И напоследок — тот самый дачный домик гномика. Оцените, как эффектно он выглядит в окружении композиции из растений, садовых дорожек.
На фото оригинальная форма домика
Уделите дачному туалету немного времени и внимания, чтобы пользоваться им было одно удовольствие, а о проблемах вы даже не думали!
Как правильно построить деревянный туалет на даче своими руками
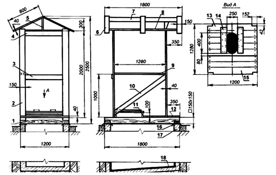
Самым простым, классическим типом деревянного туалета для дачи, сделанного своими руками, является туалетная кабинка «Скворечник». Она представляет собой невысокое строение со скошенной односкатной крышей, дверью и вентиляционным окошком. Такая постройка проста в исполнении и довольно экономична. Кроме этого, такой уличный клозет при необходимости можно легко перенести на новое место.
Технические характеристики традиционного уличного туалета «Скворечник»:
- передняя стенка (высота) – 2,3 м;
- задняя стенка (высота) – 2,0 м;
- ширина передней и задней стенок – от 1,0 м;
- основание кабинки – 1,0 на 1,0 м (стандартно, но можно больше);
- величина угла ската кровли – 25-35 градусов.
Для строительства деревянной кабинки «Скворечник» могут понадобиться следующие материалы:
- деревянный брус;
- обрезная доска;
- деревянная вагонка;
- ДСП, ОСП листы или фанера;
- дощатый щит;
- шифер (классический или пластиковый);
- рубероид;
- стальной металлопрофиль.
При постройке туалета на даче своими руками нужно соблюдать такие правила:
- Создавая чертеж будущей кабинки, необходимо учитывать размеры внутреннего помещения, чтобы пользоваться туалетом было удобно и безопасно.
- Высота туалетного домика должна быть не менее 2,0 м. Низкий дверной проем неудобен, так как перед входом внутрь каждый раз нужно будет обязательно наклониться.
- При постройке кабинки типа «Скворечник» передняя часть кровли выше задней. Это необходимо для того, чтобы сток дождевой или талой воды происходил за строением.
- Если электрическое освещение внутри туалетного домика не планируется, то нужно позаботиться о естественном освещении кабинки через небольшое окно в верхней части строения или в двери.
- Для вентиляции туалета следует предусмотреть открытое окошко или вытяжную трубу. Это важный момент, о котором не стоит забывать.
- Для того чтобы летом в туалетной кабинке не было слишком душно, ее лучше строить на самом тенистом участке.
- При выборе места для туалетного домика на даче следует избегать соседства с колодцами, скважинами, природными и искусственными водоемами.
Процесс постройки уличного туалета «Скворечник» с выгребной ямой:
- Для начала нужно выкопать яму объемом 2,0-2,5 м³. Яма должна выходить из периметра туалетной кабинки (см. чертеж «Скворечника» выше). Нижний уровень котлована лучше делать с небольшим уклоном в сторону выгреба. Для герметизации биологических отходов дно и стенки котлована выложить кирпичом, шлакоблоком, бетонным саркофагом.
- Из деревянного бруса (толщиной не менее 10,0 см) собрать основание под туалетную кабинку. Для этой цели можно использовать бетонные блоки, бордюр или шлакоблоки – это увеличит срок использования надстройки туалета. Часть ямы, предназначенной для осуществления выгреба, закрыть деревянным настилом (щитом). Его крышку нужно обработать битумом и накрыть рубероидом для защиты от проникновения влаги внутрь котлована.
- Вторая часть ямы предназначена для расположения над ней деревянного домика. Каркас кабинки «Скворечник» собрать по схеме.
- Затем его можно обшить обрезной доской, вагонкой, деревянными щитами или любым другим отделочным материалом. Внутри кабинки смонтировать стульчак с отверстием нужной формы и размера.
- Крышу туалета покрыть любым кровельным материалом, в передней части установить дверь, вырезать вентиляционное окошко. Готовую деревянную кабинку установить на фундамент с ямой и зафиксировать ее со всех сторон. Вплотную к задней стенке туалетного домика, в деревянном настиле, вырезать отверстие под пластиковую вентиляционную трубу (диаметр 10,0 см). Вставить ее в это отверстие и закрепить к стенке туалета хомутами. Нижний конец трубы заглубить на 20,0 см в яму, а верхний конец должен быть не менее 70,0 см от уровня настила (надеть защитный колпак).
После того как конструкция туалета будет смонтирована, все деревянные поверхности кабинки нужно обязательно обработать пропиткой, покрыть морилкой, лаком или масляной краской. Такая обработка замедлит процесс старения древесины и придаст постройке красивый эстетичный вид. Соблюдая особую технологию, дачный деревянный туалет можно обложить кафелем изнутри.
По такому же принципу на дачном участке можно построить и установить своими руками деревянные туалетные кабинки другой конструкции.
Особенности строительства туалета на даче своими руками из разных материалов: чертежи и фото готовых строений
Построить туалет на участке можно из любых материалов, кроме того, это прекрасный способ утилизировать остатки, которые остались после возведения жилого дома.
Как построить туалет на даче своими руками из металла
Для каркаса клозета из металла можно взять уголки, а обшивку выполнить из древесины или любых иных надёжных аналогов. Строительство состоит из следующих этапов.
- Для жёсткого каркаса нам понадобятся асбестоцементные трубы, обработанные с внешней стороны битумной мастикой, которая защитит поверхность от разрушения. Их необходимо вкопать по углам строения на глубину до 70 см.
- Заполнить трубы на треть бетоном.
- Вставить по центру каждой трубы металлические уголки строго вертикально и дополнить трубы бетоном для надёжной фиксации.
- Сварить каркас из вертикальных опор и горизонтальных перемычек. Для них подойдут стальные уголки 50×50 мм². Необходимо предусмотреть уклон крыши от 10º до 30º.
- Установить на основание каркас и соединить сваркой или болтами все элементы.
- Обработать весь металл от коррозии.
- Обшить каркас и кровлю профнастилом при помощи саморезов по металлу с прорезиненными шайбами.
- Можно дополнительно утеплить каркас пенопластом толщиной до 30 мм.
- Внутреннюю отделку можно выполнить любым материалом, в том числе и деревом.
- Для пола подойдёт шлифованная доска толщиной до 50 мм. Обязательно следует сделать подиум.
- Для дверного каркаса подойдут стальные уголки или брус.
- Обработать древесину защитными пропитками.
ФОТО: apsheronsk.reklama-kuban.com
ФОТО: tosno-stroy.ru
ФОТО: ua.all.biz
ФОТО: krov-torg.ru
На видео можно более подробно ознакомиться с процессом строительства туалета из профнастила:
Watch this video on YouTube
Туалет на даче своими руками из кирпича: чертежи, размеры
Если вы решите использовать туалет не только летом, но и в холодный период, кирпич – это лучшее решение. Кроме того, он, в отличие от древесины, прослужит не один десяток лет. При желании, клозет можно дополнительно утеплить. Получится настоящее капитальное строение.
Туалет, построенный из кирпича, чертежи, схемы и фото которого представлены в нашей галерее, имеет крышу с небольшим уклоном. Её обязательно нужно вывести за периметр каркаса на расстояние около 150 мм.
ФОТО: rukozhopim.ru
ФОТО: rukozhopim.ru
ФОТО: beton021.ru
ФОТО: svoimi-rykami.ru
Весь процесс строительства ямы и туалета из кирпича можно посмотреть на видео:
Watch this video on YouTube
Деревянный туалет для дачи своими руками: чертежи и размеры
Если вы планируете построить отхожее место из древесины, её обязательно следует обработать защитной пропиткой. Брус сечением не менее 40×60 мм используют для каркаса, в качестве обшивки подойдёт любой материал. Мы подобрали несколько интересных чертежей с размерами, которые можно взять на вооружение.
ФОТО: hozferma.ru
ФОТО: beton021.ru
ФОТО: vashbiotualet.ru
ФОТО: pinterest.ru
Как своими руками сделать основание из бетона для туалета на даче: размеры, чертежи
Многие владельцы предпочитают покупать готовые кабинки из дерева, для которых потребуется сделать фундамент с ямой самостоятельно. Основание из бетона – это лучшее решение, оно прослужит не один десяток лет. В зависимости от размета туалета, наличия дополнительных пристроек и типа грунта, можно выбрать один из наиболее удобных вариантов.
ФОТО: remontiruj-info.ru
ФОТО: stroypomochnik.ru
ФОТО: nedvigdom.ru
Изготовление
Когда под туалет выбран участок, вы определились с типом системы утилизации отходов, а также придумали, какой будет надземная конструкция туалета – можно приступать к процессу. Далее мы расскажем и покажем на фото и видео, как поэтапно построить туалет с выгребной ямой на даче своими руками, используя чертежи с размерами.
В целом процесс можно разделить на такие шаги:
- Выкапываем выгреб.
- Закладываем фундамент.
- Сооружаем домик.
Для работы будем использовать следующий чертеж (параметры вы можете менять под свои потребности):
Чертеж.
Выгребная яма
Для работы могут потребоваться следующие инструменты:
- лопаты;
- уровень и рулетка;
- ручной бур;
- молоток;
- шуруповерт;
- шлифмашинка;
- лом/бур;
- лобзик.
Из материалов будем использовать:
- песок;
- цемент;
- щебень;
- арматура и металлическая сетка;
- плотная полиэтиленовая пленка.
Инструкция по обустройству ямы:
- Определите форму выгреба в соответствии с проектом туалета. Обычно это круглая или квадратная форма, может быть прямоугольной.
- При использовании накопительного резервуара правильно определите его расположение – входное отверстие должно располагаться на месте стульчака, второе – выходит за пределы постройки. В таком случае выгреб роется по форме емкости, прибавляя по 30 см с каждой стороны.
- На дно выгреба помещается толстый дренажный слой из крупных камней, кирпича.
- Укрепляем стенки выгреба. С этой целью фиксируем к ним сетку-рабицу и армирующую решетку. Для закрепления можно воспользоваться металлическими штырями.
- Стенки бетонируем слоем 5-10 см и дожидаемся полного высыхания. После оштукатуриваем.
- Сверху устанавливаем плиту перекрытия – она же будет служить фундаментом.
- Сверху на яму укладываем деревянные брусья, предварительно пропитанные защитным раствором. Можно вместо них использовать бетонные столбы. Эти конструкции нужно углубить по уровень земли.
- Поверхность застилается полиэтиленом, под люк и сидение оставляются отверстия и обрабатываются опалубкой.
- Сверху на пленку укладываем решетчатый каркас, заливаем все бетоном и дожидаемся высыхания. Готово, остается построить домик.
Устройство ямы.
Также читайте: выгребная яма без откачки.
Если планируется построить простой, дешевый туалет для редкого использования, яму можно обустроить покрышками. Пошаговый алгоритм действий простой:
- Выройте углубление по форме покрышек, прибавив 20 см в диаметре.
- Дно засыпьте щебнем, слоем 20 см.
- По центру выложите покрышки одна на другую, верхняя должна равняться с почвой.
- Пространство по бокам засыпьте песком и гравием, тщательно уплотняя слои.
- Сооружаем фундамент. По периметру вырываем углубление на 0,5 м. Заполняем его песком и щебнем по 10 см.
- Перекрываем полиэтиленовой пленкой.
- Создаем каркас. Для этого используем кирпичи, заливая цементом, либо арматуру с цементом.
- После высыхания бетона его нужно оштукатурить, покрыть рубероидом и поставить домик.
Яма из покрышек.
Если выгреб обустраивается при помощи бочки, алгоритм действий идентичный.
Выгреб из бочки.
Домик
Теперь приступаем к довольно творческой части – сооружению домика. Расскажем и покажем пошагово на фото с чертежами процесс изготовления дачного туалета своими руками.
Совет: постарайтесь делать конструкцию максимально легкой, чтобы грунт по максимально долго не проседал.
Конструкция домика может быть самой разной – «теремок», «шалаш», «мельница», «домик».
Виды туалетных домиков.
На фото ниже изображен черте простой конструкции теремка.
Чертеж домика туалета.
Для сооружения «шалаша» используйте следующий чертеж:
Чертеж конструкции типа шалаш.
Для простой кабинки («скворечник») воспользуйтесь этим чертежом:
Прямоугольная туалетная кабинка.
Изготовление максимально простое. По схеме необходимо сделать каркас из брусьев, оббить его досками. Далее уложить кровельный материал, поставить окна и двери. В завершение необходимо сделать внутреннюю отделку, оклеив стены обоями или покрасив краской.
Совет: сам стульчак необходимо приобрести из пластика с прямым отверстием. Устанавливать обычные керамические городские модели нельзя по причине их большого веса, а также внутреннего уклона для смыва.
Деревянный туалет внутри.
Таким образом, вы узнали, как построить уличный туалет на даче своими руками, используя для этого чертежи с размерами, фото и видео. Как видите, этот процесс несложный, но к обустройству стоит подойти ответственно, ведь постройка на долгое время определит комфорт пребывания на загородном участке.
Видео: дачный туалет своими руками.
Какой вид туалета выбрать?
По способу устройства выделяют 3 основных вида дачных туалетов.
Выгребной
Стандартный вариант дачного клозета с ямой под ним. Главный минус этого решения — сложности с выбором места, ведь все правила СНиПов относятся в первую очередь к туалетам с выгребной ямой, т.к. не полностью герметичная конструкция приводит к заражению грунтовых вод, почвы и всем вытекающим отсюда проблемам.
Еще один недостаток — запах из выгребной ямы. Чтобы от него избавиться придется регулярно чистить внутренности (при помощи бактерий или ассенизатора), а также ухаживать за самой кабинкой: например, красить, выводя въевшиеся пары.
Зато большой объем емкости выгребной ямы позволяет пользоваться таким строением всей семьей, не переживая о переработке отходов.
Пудр-клозет
Главное отличие от выгребного дачного туалета — непосредственное отсутствие септика. Соответственно, данный вариант более экологичный в сравнении с первым: нечистоты не попадают в грунтовые воды, а при выборе площадки для размещения придется учитывать только возможность неприятного запаха.
Конструкция подобного уличного туалета достаточно проста: кабинка, стульчак с крышкой на платформе, емкость для сбора отходов непосредственно под сиденьем. А главное — бачок с присыпкой: здесь она вместо воды. В качестве присыпки чаще всего используют опилки, специальные соли или торф.
В условиях дачного хозяйства торфяной туалет практичнее: в нем не только абсорбируется неприятный запах, но и происходят скоростные процессы гниения. После заполнения емкости содержимое перекладывается в кучу с компостом и используется в качестве удобрения.
Пудр-клозеты зачастую оборудуют примитивной системой вентиляции. Вентиляционная труба крепится непосредственно к емкости и выводится наружу. Благодаря чему оставшиеся неприятные запахи распространяются не по кабинке, а рассеиваются на улице.
Биотуалет
Пластиковые кабинки синего, серого или зеленого цвета, известные на территории СНГ как биотуалеты, во всем мире имеют другое название — химические. И последнее как нельзя лучше характеризует принцип работы конструкции.
Химические дачные туалеты представляют собой «замкнутый» унитаз, состоящий из 2 бачков: верхнего со стульчаком и нижнего — санитарный бак со специальной жидкостью. Вода со специальными добавками эффективно избавляет от запахов, за 20-30 часов разлагает фекалии до однородной массы без запаха. Пластиковый каркас также не впитывает запахи, к тому же его легко мыть (можно даже производить очистку внутри при помощи шланга или автомобильной мойки).
Отсутствие выгребной ямы и сильных запахов позволяет установить туалет на даче абсолютно в любом месте — в том числе непосредственно у жилого дома.
К сожалению, у химической технологии есть и недостатки: формальдегиды или другие химические вещества, отвечающие за разложение нечистот перечеркивают все удобство кабинки. Дело в том, что отходы регулярно нужно куда-то выливать, но делать это в грунт или дачную компостную кучу нельзя: химикаты отравят все вокруг. Поэтому все-таки придется обзавестись септиком или герметичной выгребной ямой, а также регулярно вызывать ассенизаторов.
Еще один минус в самом пластике — стенки выгорают на летнем солнце, трескаются от зимнего мороза. Через короткое время туалет на даче потеряет привлекательный внешний вид.
Как построить дачный туалет с выгребной ямой своими руками: размеры, чертежи, инструкция по изготовлению
Туалет с выгребной ямой – этот вариант для дачи нам более привычный. Расскажем подробнее, как правильно его построить, рассмотрим все этапы работы.
Что понадобится для работы
Перед тем, как сделать уличный туалет, нужно подготовить:
- обрезную доску;
- металлическую бочку для ямы;
- цементно-песчаные блоки 25×18×19 см в качестве основания;
- брус 40×60 мм;
- уголки, саморезы;
- гидроизоляцию;
- строительный уровень;
- профнастил;
- отработанное масло.
Устройство выгребной ямы для туалета на даче
Возведение туалета на даче своими руками начинается с выгребной ямы, каждый владелец самостоятельно выбирает более удобный для себя вариант.
| Иллюстрация | Описание действия |
| Из автомобильных покрышек. Нужно подобрать несколько шин одинакового диаметра и выкопать яму немного большего размера. На дно можно засыпать слой гравия, а простенок заполнить галькой и битым кирпичом |
| Из кирпича. Предварительно нужно выкопать яму 1×1 м² или 1,5×1,5 м², дно также можно забетонировать или засыпать слоем гальки |
| Установить пластиковый резервуар, присыпать грунтом, сверху поставить туалет |
| Установить бетонные кольца, для их монтажа потребуется привлечение крана |
| Залить монолитную конструкцию |
Дачный туалет своими руками: пошаговая инструкция от а до я
Предлагаем своими руками построить небольшой и очень простой дачный туалет со скатной крышей. Пошаговые фотоописания помогут в работе.
| Иллюстрация | Описание действия |
![]() | Сделать разметку на земле по диаметру бочки и выкопать яму. Из бочки удалить дно и верх, установить её в яме и выполнить обсыпку грунтом |
![]() | Залить цементно-песчаным раствором пустоты |
![]() | Для нижней обвязки взять доску 100×50 мм и соединить её монтажными уголками. Обязательно проверить диагонали |
![]() | Укрепить конструкцию саморезами с наружной стороны |
![]() | Покрыть доски отработанным машинным маслом, которое предупредит гниение древесины, кроме того, оно обладает водоотталкивающими свойствами |
![]() | После того, как масло впиталось, и застыл раствор, сделать разметку туалета и выровнять поверхность |
![]() | Под фундаментные блоки сделать на земле разметку, выкопать ямки глубиной около 30 см, утрамбовать грунт и засыпать щебень |
![]() | Установку каждого блока нужно проверить уровнем |
![]() | Вырезать гидроизоляцию на каждый блок, уложить на неё первую линию обвязки |
![]() | Подготовить доски для второй линии обвязки, покрыть их машинным маслом, уложить на первый слой и прикрутить к основанию |
![]() | Из бруса 40×60 мм установить на уголки вертикальные стойки |
![]() | На высоте 90 см закрепить уголки, на них уложить горизонтальный брус |
![]() | Смонтировать каркас туалета. Укосинами можно выровнять вертикальность стоек |
![]() | Перед настилом пола необходимо закрепить 2 дополнительных бруса к обвязке и покрыть их отработанным маслом. Затем на саморезы прикрутить доску толщиной 25 мм. Размер отверстия получился 24×36 см |
![]() | Обшить каркас туалета снаружи |
![]() | Для каркаса дверей понадобится брус 40×60 мм, для обшивки – доска толщиной 25 мм |
![]() | Покрыть все доски отработанным маслом |
![]() | Закрепить на крыше профнастил, закрыть фундамент доской, покрашенной отработанным маслом, и присыпать землёй |
Более подробно весь мастер-класс можно посмотреть на видео:
Watch this video on YouTube
Как своими руками установить вентканалы в дачном туалете: фото и чертежи
Для небольшого сооружения достаточно естественной вентиляции, это самый простой и дешёвый способ наладить дополнительный воздухообмен и для основной зоны, и для ямы.
Для ямы прекрасно подойдёт труба ПВХ диаметром от 11 см, которую следует закрепить вертикально.
Верхняя часть должна быть выше кровли на 0,2 м. Между нижней границей и отходами нужно оставить некоторое расстояние, чтобы возникла тяга. Если придерживаться данных рекомендаций, воздухообмен будет отличным для своевременного удаления метана из ёмкости.
Пластиковую трубу легко установить своими руками, на верхушке обязательно следует закрепить дефлектор, благодаря которому система работает намного эффективнее, кроме того, он предупредит замерзание воды на конструкции. Если подобрать модель с функцией флюгера, скорость потоков будет увеличена.
ФОТО: beton021.ru
ФОТО: electricschool.ru
ФОТО: west-deflektor.ru
Более подробно об установке вентиляции в дачном туалете можно посмотреть на видео:
Watch this video on YouTube
Материал для строительства
При самостоятельном строительстве дачного туалета используются разные материалы: дерево, кирпич, ОСБ плита, фанера, старые поддоны, металл. Каждый материал имеет свои плюсы и минусы.
Дерево
Считается самым доступным в ценовом плане материалом, обладающим высокими техническими характеристиками. Из него сооружаются уличные туалеты всевозможных форм и дизайнов, благодаря тому, что материал хорошо поддается обработке, и легко окрашивается.
При строительстве сортира преимущественно используется дерево хвойных или лиственных пород. Так как эта древесина отличается водостойкостью, прочностью и удобством в работе. Вместо дерева можно использовать и вагонку, отличающуюся эстетичностью. Главное, материал периодически обрабатывать различными пропитками и антисептиками, повышая его пожаробезопасность и стойкость к образованию грибков и плесени.
ОСБ плита
При строительстве деревенского сортира из ОСБ плиты стоит подчеркнуть достоинства используемого материала:
- прочность и стойкость к деформации;
- влагостойкость, благодаря использованию смолы в качестве вяжущего материала;
- небольшой вес. Для таких построек нет необходимости сооружать прочный фундамент;
- удобство в работе. Как и дерево, ОСБ плиты легко режутся и пилятся как ручными, так и электрическими инструментами;
- экологичность. Данный материал не выделяет никаких вредных токсинов.
Построить из ОСБ можно уличный сортир по любой схеме: теремок, шалаш, скворечник, избушка. Проявив немного фантазии и творческого подхода, можно получить красивое и оригинальное строение, гармонично вписывающееся в общий ландшафтный дизайн.
Поддоны
Чтобы построить недорогой туалет для временного проживания на даче, прекрасно подойдут и старые поддоны. К преимуществам такой постройки стоит отнести:
- натуральность и экологичность;
- прочность и способность выдерживать большие нагрузки;
- длительный срок эксплуатации (при своевременной обработке материала антибактериальными средствами и пропитками, повышающими пожаростойкость материала);
- эстетичность.
Строительство уличного сортира из поддонов практически ничем не отличается от технологии работ с древесиной. Сами поддоны стоит аккуратно разобрать, отшлифовать, обработать антисептиком и подогнать по размерам будущей постройки.
Профлист
Данный материал подходит для сооружения летней уборной. Главное, расположить постройку в тени, так как на солнце металл будет сильно нагреваться. Сами профильные листы предоставляются производителями в разных цветовых решениях. Они покрываются защитным слоем, предотвращающим коррозию материала. Крепятся листы металла к каркасу постройки саморезами или специальными вытяжными заклепками
Поэтому под рукой важно иметь шуруповерт или заклепочник































ФОТО: smartremstroy.ru
ФОТО: masterhost.ru
ФОТО: agronomu.com
ФОТО: kanalizaciya-stroy.ru
ФОТО: strojdvor.ru






















