Мансарда в доме
Одноэтажный дом с мансардой в современном стиле
Сейчас все чаще заказывают проект дома с мансардой и гаражом. Такая компактная пристройка дает возможность значительно сэкономить земельное пространство для обустройства уютного дворика, к тому же она и выглядит красиво. Такой большой или не очень особняк может стать своеобразной визитной карточкой хозяина и рассказать о его вкусах многое.
Решили строить одноэтажный дом с мансардой, приготовьтесь к тому, что проект крыши дома придется разрабатывать очень тщательно и с привлечением специалистов. Ведь теплый и влажный воздух, который поднимается из дома, образует конденсат, а внешнее природное воздействие (дождь, снег, солнце) могут существенно повлиять не лучшим образом на состояние внутренней отделки комнаты наверху. Для того, чтобы такого не произошло, потребуется надежная паро- тепло- и гидроизоляция. Но несмотря на некоторые особые требования, увеличение жилой площади того стоит. Да и стоимость дешевле, чем возведение двухэтажного с такой же площадью.
Проекты домов с мансардой и гаражом ценятся своей уникальностью
Красивый загородный дом с мансардой и гаражом в кремовом цвете
Итак, крыша готова, осталось продумать и осуществить ее утепление, чтобы в дальнейшем помещение было уютным и комфортным. Как известно, потеря тепла там наибольшая. Это происходит вследствие того, что естественная тепловая подушка, существующая в сооружениях с обыкновенным перекрытием, отсутствует.
Схема утепления кровли дома с мансардой
Такой проект крыши дома требует тщательного и внимательного подбора материалов для утепления. Вариантов много:
- пенопласт – дешевый материал, легко укладывать, хороший теплоизолятор, но легко воспламеняется;
- ДВП. Такой материал лучше всего применять, если под мансардой расположена баня. ДВП отличный тепло- и звукоизолятор, работать с ним легко. Однако в жилых помещениях его использование не рекомендуется;
Современный рынок богат ассортиментом видов утеплителей для крыши
стекловата – вариант бюджетный. А вот укладывать ее несколько проблематично: много опасной для здоровья пыли, потребуется специальная защита. Но преимущество неоспоримо – теплоизоляционные качества отличные, устойчива к воспламенению.
При работе со стекловатой необходимо использовать специальные средства защиты
Утепление кровли пенополиуретаном
Минеральная вата по своим свойствам не уступает стекловате, но гораздо безопаснее в монтаже
Выбор утеплителей в продаже велик. Подобрать нужный, не составит труда.
Преимущества проектирования в программе
Зачастую в центре внимания оказывается планировка дома 6 на 8 с двумя этажами. Поэтому в представленной статье мы предлагаем вам узнать о том, как можно легко и быстро обустроить такое жилище, используя софт «Дизайн Интерьера 3D».
Главное меню программы «Дизайн Интерьера 3D»
Вместе с инструментами бесплатной версии «Дизайна Интерьера 3D» сделать проекты двухэтажных домов 6 на 8 может любой человек. Для этого не потребуется тратить время на освоение сложных дизайнерских премудростей. Достаточно начертить план дачного или загородного дома в интуитивно-понятном редакторе и начать творить. После установки программы у вас появится:
- ✓ Мощный инструмент для проектирования — полностью на русском языке!
- ✓ 100+ предметов мебели для обустройства комнат. Добавляйте нужные элементы на план, настраивайте их положение, размер и вид до самых мелочей!
- ✓ 450+ вариантов отделки. Используйте готовые текстуры или добавляйте свои!
- ✓ Функцию отмены любых действий. При совершении ошибки вам не придется начинать работу сначала. Удаляйте неугодные элементы на плане или отменяйте последнее действие, в любой момент меняйте площадь постройки!
- ✓ Быстрое составление сметы. Теперь подсчитать предстоящие расходы стало проще! После создания плана вы сможете сформировать смету и получить на выходе список предметов для приобретения и их стоимость.
- ✓ Удобный экспорт проекта. Сохраняйте готовый план в PDF или графическом формате, распечатайте или оставьте на ПК с расширением dip, тогда можно будет вернуться к редактированию позже.
Как оборудовать под мансарду чердак загородного коттеджа
Практически в любом доме есть чердак, который используется для хранения старых вещей.
При желании планировка и обустройство чердака может быть самым выгодным образом переоборудована в мансарду. Появится полноценный второй этаж дачи, который можно использовать по личному усмотрению, придав ему прекрасный, ухоженный вид. Начать перепланировку предусмотрительнее всего будет с укрепления пола мансарды деревянными балками.
С этой же целью можно вначале уложить поперечные специальные перегородки, а на них уже сделать настил деревянного «чернового» пола, который в дальнейшем станет основой для красивого добротного покрытия.
Особое внимание уделим утеплению мансарды для того, чтобы морозной зимой в ней было так же тепло и уютно, как и летом
Процесс утепления чердака для оборудования мансарды
Любая планировка крыши загородного дома даёт гарантированную защиту от дождя и снега, но от холода она уберечь не в состоянии, поэтому необходимо будет заранее позаботиться о специальном утеплителе. Для этой цели лучше всего подойдут обычные средней толщины маты.
Также нужно не забыть и о должной системе вентиляции мансардного этажа. Планировка загородной дачи 6х6 с мансардой предусматривает проведение в дом электричества, общей системы отопления и центрального водоснабжения. Всё это необходимо для полноценного и комфортного проживания в доме в любое время года.
Проекты домов с мансардой и гаражом: отличительные черты коттеджей
Дом с мансардой – фото наглядно отображают различные варианты – является наиболее рациональным решением для небольшого участка, позволяющим увеличить жилую площадь без сокращения земельных угодий. Наличие личного транспорта становится причиной еще одного популярного приема – строительства дома с гаражом.

Проект дома с мансардой и гаражом для одного автомобиля
Проекты коттеджей с гаражом и мансардой обладают рядом преимуществ:
- благодаря совмещению двух функциональных зон удается снизить затраты, связанные с разработкой проекта и выполнением строительных работ;
- смежное расположение жилой зоны и гаража создает комфортную обстановку в последнем, что приводит к снижению затрат, связанных с отоплением гаража;
- создание внутреннего прохода позволяет беспрепятственно перемещаться из комнаты в гараж, не выходя на улицу, что особенно удобно в период ненастья;
- создание мансардного помещения обеспечивает увеличение жилой площади, что особенно актуально для одноэтажных построек;
- компактное многофункциональное сооружение позволяет существенно сэкономить свободную площадь земельного участка;
- строительство мансарды обойдется значительно дешевле, чем возведение второго этажа;
- мансардный этаж позволяет дополнительно утеплить жилое помещение, избавив его от сквозняков;
- пристроенный гараж будет стоить намного меньше, чем отдельно стоящий элемент;
- строения имеют стильный и презентабельный внешний вид, заметно выделяющий их на фоне других построек.
Основные технические характеристики подобного строительства
Чертеж мансардного этажа необходимо сконструировать так, чтобы он был достаточно высоким, в человеческий рост, чтобы, к примеру, при оборудовании на нём детской комнаты, взрослые тоже чувствовали себя комфортно.
Неизменным условием при строительстве такого коттеджа является то, что все перегородки должны строиться с таким расчётом, чтобы они были способны выдержать большую нагрузку на перекрытие от веса людей и мебели, обеспечивая гарантированную безопасность жилого помещения.
Подробный чертеж конструкции мансардного этажа
Стены же мансарды можно изготовить из обычных досок, поскольку они не являются несущими конструкциями.
Мансарда в доме
Одноэтажный дом с мансардой в современном стиле
Сейчас все чаще заказывают проект дома с мансардой и гаражом. Такая компактная пристройка дает возможность значительно сэкономить земельное пространство для обустройства уютного дворика, к тому же она и выглядит красиво. Такой большой или не очень особняк может стать своеобразной визитной карточкой хозяина и рассказать о его вкусах многое.
Решили строить одноэтажный дом с мансардой, приготовьтесь к тому, что проект крыши дома придется разрабатывать очень тщательно и с привлечением специалистов. Ведь теплый и влажный воздух, который поднимается из дома, образует конденсат, а внешнее природное воздействие (дождь, снег, солнце) могут существенно повлиять не лучшим образом на состояние внутренней отделки комнаты наверху. Для того, чтобы такого не произошло, потребуется надежная паро- тепло- и гидроизоляция. Но несмотря на некоторые особые требования, увеличение жилой площади того стоит. Да и стоимость дешевле, чем возведение двухэтажного с такой же площадью.
Проекты домов с мансардой и гаражом ценятся своей уникальностью
Красивый загородный дом с мансардой и гаражом в кремовом цвете
Итак, крыша готова, осталось продумать и осуществить ее утепление, чтобы в дальнейшем помещение было уютным и комфортным. Как известно, потеря тепла там наибольшая. Это происходит вследствие того, что естественная тепловая подушка, существующая в сооружениях с обыкновенным перекрытием, отсутствует.
Схема утепления кровли дома с мансардой
Такой проект крыши дома требует тщательного и внимательного подбора материалов для утепления. Вариантов много:
- пенопласт – дешевый материал, легко укладывать, хороший теплоизолятор, но легко воспламеняется;
- ДВП. Такой материал лучше всего применять, если под мансардой расположена баня. ДВП отличный тепло- и звукоизолятор, работать с ним легко. Однако в жилых помещениях его использование не рекомендуется;
Современный рынок богат ассортиментом видов утеплителей для крыши
стекловата – вариант бюджетный. А вот укладывать ее несколько проблематично: много опасной для здоровья пыли, потребуется специальная защита. Но преимущество неоспоримо – теплоизоляционные качества отличные, устойчива к воспламенению.
При работе со стекловатой необходимо использовать специальные средства защиты
Утепление кровли пенополиуретаном
Минеральная вата по своим свойствам не уступает стекловате, но гораздо безопаснее в монтаже
Выбор утеплителей в продаже велик. Подобрать нужный, не составит труда.
Варианты проектов для создания больших построек
Сегодня существует множество вариаций готовых проектов домов и коттеджей с мансардой и гаражом. Все они отличаются габаритами и внутренним наполнением. Существуют варианты одноэтажных и двухэтажных строений, помещений с цокольным этажом, винным хранилищем или баней.

Для строения дома с мансардой и гаражом можно воспользоваться готовым проектом
Дома с площадью более 100 м² намного проще обустроить. Фото планов строений наглядно отображают множество различных вариаций, в том числе это проекты гаража и мансарды на 2 машины. Мансардный этаж будет более вместительным благодаря большой свободной площади. Здесь существует возможность организовать несколько жилых комнат, обустроить спортзал, поставить бильярдный стол или создать просторную гостиную. Гараж, который может иметь разные габариты, несложно пристроить с любой стороны сооружения. При этом в обязательном порядке следует учитывать эстетику дома, чтобы пристройка не искажала его пропорции.
Возведение габаритного строения можно осуществлять по проекту одноэтажного дома с гаражом на 2 машины. Особенно это актуально, когда в семье насчитывается два автомобиля. Над гаражом можно организовать зимний сад, домашний кинотеатр или игровую, что наглядно отображено на фото гаража на 2 машины с мансардой.
Можно придать строению стильность и оригинальность, заменив стандартные стены мансардного этажа стеклянными. Также владельцы двух и более автомобилей по достоинству оценят проект дома с гаражом под домом, расположенным на первом этаже. Жилые комнаты в этом случае находятся в мансардном помещении, которое планируется исходя из личных предпочтений хозяев дома. Различные варианты можно увидеть на фото проектов гаража с жилой мансардой.
Вариации проектов небольших домов: фото примеры
Проекты домов с мансардой до 100 м² требуют более внимательного подхода при обустройстве жилого помещения и гаража. Если дом вытянутый и узкий, гараж пристраивают с торца. В случае квадратного строения пристройку можно выполнить с любой стороны. Еще одним вариантом, который часто предусматривается в проекте дома 6 на 8 с мансардой, является оборудование цокольного этажа, где можно обустроить гараж. Такое решение позволит получить компактное, вместительное, многофункциональное и стильное строение на небольшой территории. По соседству с гаражом можно обустроить парную или баню.

Проектирование небольшого дома с мансардой требует более внимательного подхода
Мансарда в этом случае будет иметь меньшую площадь. Здесь возможно расположение всего одной комнаты
Поэтому, чтобы получить максимум свободного пространства, особое внимание следует уделить конструкции крыши, выбрав ломаный вариант. Для дачной версии мансардное помещение может быть использовано в качестве хозяйственного помещения
В этом случае рекомендуется обустроить двускатную крышу, вследствие чего удастся существенно сэкономить на строительстве.
При создании дизайна домов часто применяются дополнительные архитектурные элементы, благодаря которым создается не только презентабельный и стильный внешний вид строения, но и расширяется свободное пространство внутри дома. Одним из таких элементов является эркер. Фото домов с гаражом и мансардой наглядно демонстрируют множество вариаций его расположения.
Также можно использовать колонны, эксклюзивные окна. Дополнительное обустройство террасы или веранды облагородит строение, сделав его более уютным. Для комфортного летнего отдыха отнюдь нелишним будет создание балкона.

Если дом имеет прямоугольную форму, то гараж лучше расположить с торца
Внимания заслуживает проект дома с мансардой (фото это наглядно отображают), где гараж покрывает плоская крыша, которая является основанием террасы. Эстетичность и элегантность конструкции достигается умелым комбинированием отделочных материалов. Для большой семьи придется по душе просторный коттедж с мансардой, увенчанной ломаной крышей, что обеспечивает максимальное целевое использование мансардного этажа.
Прежде чем определиться с конкретным вариантом, следует подробно изучить различные проекты, где в плане дома с мансардой и гаражом представлены всевозможные вариации внутренней планировки помещений. Опытные специалисты адаптируют выбранную разработку под конкретный регион и внесут необходимые изменения, основываясь на пожеланиях заказчика.
Выгоды и преимущества строительства
С целью эффективной экономии свободного пространства и компактного размещения жилых и функциональных построек на территории, выделенной под жилье, гараж можно расположить в непосредственной близости к дому.
Практичное, совместное размещение двух зданий, которые объединяет одна крыша, имеет свои плюсы и преимущества для домовладельцев и хозяев автотранспорта, к основным из них можно отнести такие возможности:
- снижение финансовых затрат на строительство. Капитальное строительство отдельно стоящих построек потребует значительных финансовых вложений, по сравнению с дорогостоящим, комплексным возведением совмещенных зданий;
- удобство эксплуатации и экономия времени. Попасть в гараж, который расположен рядом с жильем намного проще, чем в другие хозяйственные постройки, размещенные на территории, в машину можно попасть сразу из дома;
- функциональное использование территории. На свободной территории придомовой зоны размещаются разнообразные постройки для отдыха и организации досуга, за счет компактного проектирования и совмещения гаража с домом.
К недостаткам такого проектного решения относятся возможность проникновения холода из неотапливаемого гаража или шума работающего двигателя, который может побеспокоить жильцов частного дома.
Избавиться от таких минусов очень просто, достаточно осуществить мероприятия по обустройству системы тепло и звукоизоляции, с использованием современных и эффективных изоляционных материалов или провести отопление в гараж.
Правильное утепление небольшого дома с мансардой и гаражом
Дома с мансардой нуждаются в организации правильного утепления. Гараж утеплять необязательно
Здесь важно организовать хорошую вентиляцию. Самым сложным этапом является утепление мансардного этажа
Здесь важно исключить возникновение сквозняков и проникновение холодных порывов ветра
Также следует должным образом организовать гидроизоляцию. Выбор утеплителя зависит от типа помещений, что находятся под мансардой, и от длительности времяпрепровождения на этаже
Здесь важно исключить возникновение сквозняков и проникновение холодных порывов ветра. Также следует должным образом организовать гидроизоляцию. Выбор утеплителя зависит от типа помещений, что находятся под мансардой, и от длительности времяпрепровождения на этаже
Выбор утеплителя зависит от типа помещений, что находятся под мансардой, и от длительности времяпрепровождения на этаже.
Наиболее популярный материал – пенопласт. Он поставляется в плитах, благодаря чему обеспечивается его удобная транспортировка и монтаж. Материал характеризуется легким весом, хорошими теплоизоляционными свойствами, низкой стоимостью. Среди недостатков можно выделить легкость воспламенения и большую вероятность раздробления изделия при монтаже.
Наиболее популярным материалом для утепления домов является пенопласт
Еще одним бюджетным материалом, что часто используется для утепления мансард, является стекловата, имеющая высокую степень теплоизоляции и устойчивость к воспламенению. Однако работать с материалом тяжело, поскольку он выделяет в воздух опасную для здоровья человека стеклянную пыль, которая может повредить дыхательные пути. Монтаж изделия следует производить в специальных средствах защиты, оберегающих органы дыхания и кожу от повреждения.
Эквивалентом стекловаты, который обладает теми же характеристиками, но лишен недостатков, является минеральная вата. Помимо этого, материал характеризуется устойчивостью к повышенной влажности, хорошей паронепроницаемостью, невосприимчивостью к зарождению микроорганизмов, пониженными теплопроводящими свойствами и экологичностью. Такие отличительные достоинства отражаются на стоимости материала.
Виды гаражей под домом
Существует множество различных вариантов гаражей, так или иначе присоединенных к дому. Среди них можно выделить навесной, пристроенный и другие виды помещений. Существуют также виды гаражей, находящиеся непосредственно под домом.
Вертикальный
Вертикальный гараж располагают прямо под жилой частью здания: на первом, техническом или цокольном этаже. Подобные проекты удобны для участков с большим перепадом высоты грунта. На нижнем уровне участка располагают цоколь, там и обустраивают гараж
Для этажей ниже уровня земли необходима тщательная гидроизоляция, особое внимание уделяют водоотводу. Чтобы сократить риск затопления и промерзания,сооружают систему отопления самого помещения и въезда (пандуса). Строительство гаража в цоколе предусматривает следующие требования:
Строительство гаража в цоколе предусматривает следующие требования:
- комплексная система водоснабжения и канализации, включающая в себя вытяжку, водоотвод с решеткой для слива воды и умывальник;
- повышенная звуко- и гидроизоляция стен и перекрытия (потолка гаража);
- установка противопожарной системы;
- утепление стен, соприкасающихся с гаражом.
Важно предусмотреть удобный пандус, в противном случае в холодное время года подъезд и выезд авто будет проблематичен. На уровне цоколя можно построить гараж и на свайном фундаменте

Комбинированный
Гараж строят на одном уровне с комнатами или нежилыми постройками (кладовки и др.), а сверху надстраивают жилую часть. Обычно подобные проекты реализуют при постройке двух или трехэтажных домов. Проекты домов с таким гаражом предусматривают грамотную планировку комнат, а именно:
- гараж отделяется от комнат первого этажа вентилируемым тамбуром;
- на втором этаже над гаражом обустраивают нежилую комнату (тренажерный зал, кабинет или бильярдную);
- комнаты первого этаже, находящиеся в прямом соседстве с гаражом делают техническими (котельная, прачечная и др.).
Подобное планирование комнат не только защищает жильцов от шума и запахов, но и обеспечивает безопасность на случай возгорания и других аварийных ситуаций. Существует несколько вариантов постройки. К примеру, гараж непосредственно под домом на фундаментных сваях устраивается на уровне цокольного этажа.

Кирпичный замок
Если хочется создать жилище интересной архитектуры, стоит выбрать дом-замок с гаражом. Может показаться, что этот проект не рассчитан на большую семью. Однако на первом этаже такого жилища предусматривается гостиная. Благодаря этому в доме могут гостить друзья и родственники хозяев. Это же помещение часто обустраивается как рабочий кабинет.
Размеры замка выбираются в пределах 6х13,5 м. Стиль архитектуры дома основан на таких фигурах, как круг, восьмиугольник и прямоугольник. Данная композиция отличается привлекательным экстерьером и обладает высокой прочностью. Проекты одноэтажных домов с мансардой и гаражом выполняются исходя из материалов, предназначенных для постройки.

Дом-замок имеет довольно много внутреннего пространства. В башне, которая пристроена к дому, можно разместить уютную веранду или комнату отдыха. Гараж обустраивается в подвале. Это позволяет существенно сэкономить свободное пространство.
Такой дом может иметь следующие показатели:
- 5 помещений жилого назначения;
- 2 санузла;
- Возможность комфортного размещения шести человек;
- Общая площадь дома составляет 245 кв. м.

Необходимо добавить, что в эту площадь включены помещения жилого назначения, которые расположены на площади 86 кв. м. Различны комнаты вспомогательного назначения расположены на 53 кв. м, а веранда, лоджия и подвальное помещение занимают 106 кв. м.
Дома с мансардой – проекты и фото
Даже типовые проекты домов с мансардой очень разноплановые по конфигурации и стилю. И это не говоря уже о домах, которые проектируются полностью по индивидуальному заказу. Предлагаем тебе для начала несколько самых распространенных вариантов!
Одноэтажный дом с мансардой
Это хороший вариант, если тебе нужен небольшой коттедж для отдыха на лето или на выходные. В одноэтажном доме с мансардой поместится все самое необходимое: кухня, одна или несколько спален, санузел, гостиная. Можно пристроить гараж, сауну или любые хозяйственные постройки.
Двухэтажный дом с мансардой
Двухэтажный дом можно превратить в настоящее родовое поместье с детскими, гостевыми, кабинетом. Чаще всего жилые помещения выносятся наверх, а функциональные остаются снизу. Например, внизу – гостиная и кухня со столовой, на втором этаже – спальня с ванной комнатой, а на мансарде – детская или рабочая мастерская. На втором этаже можно сделать открытый балкон для отдыха теплыми летними вечерами.
Дом 8 на 8 с мансардой
Если ты ищешь золотую середину между удобным и недорогим коттеджем, обрати внимание на дома 8 на 8 с мансардой. Поверь, это только кажется, что такой площади недостаточно
Здесь поместится и гостиная, и кухня, и даже несколько спален – для тебя и для гостей.
Дом 6 на 6 с мансардой
Если тебе нужен маленький и сугубо функциональный дом, а не огромный дорогой особняк – рассмотри вариант 6 на 6 с мансардой. Современные планировки и решения позволяют даже на такой площади уместить все, что нужно для жизни. Например, совмещенную кухню-гостиную, маленький практичный санузел и аккуратную спальню без лишней громоздкой мебели.
Дом из бруса с мансардой
Строительный брус – классический материал для загородных коттеджей. Вместо необработанных бревен теперь используются гладкие и ровные, с точными формами. Это существенно упростило строительство и лишило дома большинства типичных проблем, свойственных старым избам из сруба. Выбирай строганый или клееный брус – они не такие влажные и поэтому не дают такую усадку, как пиленый.
Каркасный дом с мансардой
Каркасные технологии – достижение Канады и скандинавских стран. Хотя они могут отличаться между собой, суть остается та же: дом, подобно конструктору, собирается из готовых заводских блоков. Меньшее разнообразие конфигураций и планировок сполна компенсируется быстрым строительством, доступной стоимостью и энергоэффективностью.
Дом из пеноблоков с мансардой
Пеноблоки – недорогой, практичный и удобный в работе материал с высокими теплоизоляционными свойствами за счет пористой структуры. Они укладываются, как кирпич, но при этом намного больше и легче, а значит – не требуют такого мощного фундамента. Для производства используется цементный раствор разных марок, так что можно подобрать вариант под разные климатические регионы.
Дом с мансардой и террасой
Терраса – это открытая площадка, на которой так приятно отдыхать под солнцем, жарить барбекю или любоваться закатом. Она может прилегать к дому внизу, соединяться с крыльцом или с балконом на втором этаже. Реже строят крытые зимние террасы с остеклением, освещением, водопроводом и даже отоплением.
Дом с мансардой и гаражом
Вместо некрасивой отдельной постройки, которая загромождает участок, гаражи все чаще пристраивают непосредственно к дому. Это компактнее, рациональнее и удобнее – можно оставить машину и сразу зайти внутрь. Только второму внутреннему выходу нужна хорошая изоляция – например, отдельный тамбур-прихожая, который будет защищать жилые помещения от холода, шума и запахов.
Дачный дом с мансардой
Если ты планируешь полноценную сезонную дачу, то небольшой дом с мансардой – очень удобное и компактное решение. Мансарда смотрится легче и строится проще, чем еще один полноценный этаж. Но туда вполне можно вынести спальню, другую комнату или сделать классический чердак для сезонных вещей.
Материалы для строительства
Следующий этап постройки – выбор материалов. Для сооружения гаража подойдет как кирпич, так и дерево. Можно использовать шлакоблоки или пенобетон. Однако прежде чем сделать выбор, необходимо ознакомиться с преимуществами и недостатками каждого материала.
Это самый быстрый и экономичный способ. Материал легко конструируется с помощью специального клея.
Дерево
Это не самый лучший выбор для строительства гаража, ведь древесина – быстро воспламеняющийся материал, который, к тому же, очень восприимчив к воздействию влаги. Поэтому, чтобы исключить возникновение плесени, необходимо обрабатывать поверхность антикоррозийными средствами.
Однако этот материал имеет и некоторые преимущества. К примеру, если вы решили построить гараж из бруса, это даст возможность сделать помещение с отличной теплоизоляцией, сэкономить семейный бюджет, а также выполнить все работы своими руками.
Кирпич
Это самый прочный и надежный материал в строительстве. Он не боится влаги и огня. Кроме того, кирпичная постройка прекрасно впишется в дизайн любого участка.
После выбора материала можно приступать к планировке первого и второго этажей
Первый этаж
Основой любой конструкции является фундамент, поэтому при постройке двухэтажного гаража к этому вопросу стоит подойти основательно. Часто для этого выбирают монолитную плиту из бетона, которую укладывают на песчаную подушку.
Красиво и естественно будут смотреться ворота из оцилиндрованного бруса. На высоте два с половиной метра делают опалубку, а затем заливают слой бетона. Подождав несколько дней, пока бетон застынет, можно делать перекрытие, а также слой гидроизоляции.
Второй этаж
Следующий этап – возведение стен второго этажа, которые выкладываются на нужную высоту. После создания основы делают проемы для окон, а также ставят лестницу. Укладывают стропила, за ними доски, которые перекрываются рубероидом или другим материалом.
Последний штрих – кровля крыши. Для этого можно использовать как металлочерепицу, так и пофнастил. В готовое помещение подключают все нужные коммуникации и занимаются отделкой второго этажа. Для этого необходимо тщательно продумать, что будет там находиться.
Существует много вариантов размещения в мансандровой комнате. Можно сделать большой склад для инструментов и ненужной мебели. Также можно организовать там мастерскую или комнату отдыха.
В мастерской можно установить стеллажи для инструментов, поставить верстак, организовать рабочую площадку. Тогда можно будет спокойно работать, не боясь помешать своим близким. Также, если квартира небольшая, можно организовать в мансарде комнату для занятий тем хобби, которое вам по душе. Это может быть скульптура, резьба по дереву или что-то другое.
Большой популярностью в последнее время пользуется оформление мансарды гаража под жилую комнату. Достаточно поставить диван и столик, оборудовать небольшую комнату, где можно будет посидеть с гостями. Также можно организовать оранжерею. При таком использовании верхнего этажа обязательно нужно предусмотреть систему вентиляции и утепления.
Подъездная дорожка
Подъезд к гаражу должен быть удобен и прочен. Существует много материалов для укладки подъездных дорожек. Это и брусчатка, и бетон, и гравий.
Сегодня самым распространенным вариантом является дорожка из гравия. Это самый простой в укладке материал, не требующий лишних затрат. Единственный нюанс – необходимость следить за тем, чтобы гравий не попадал во двор и в гараж. Такой материал прекрасно смотрится в сочетании с клумбами, расположенными по обеим сторонам от дорожки. Это позволяет создать уютную атмосферу в стиле прованс.
Однако данный материал имеет и недостатки. Такие дорожки неудобно чистить зимой, в сухую погоду они накапливают много пыли, а также поверхность подъездной территории может покрыться сорняками.
Другим качественным и прочным материалом для создания подъездных дорожек являются бетонные блоки. Они имеют самый долгий срок службы, не боятся воздействия погодных условий, а также легко поддерживаются в чистоте. Талантливая хозяйка может посадить вокруг дорожек кустарники или цветы. Это послужит прекрасным декором.
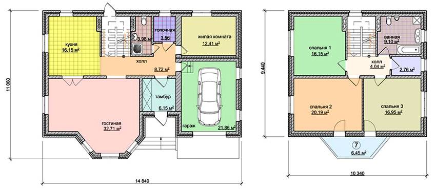
Варианты внутренней планировки дома с мансардой
Внутреннее расположение помещений выполняется с учетом требований заказчика на стадии разработки проекта гаража с мансардой – фото планировки наглядно демонстрируют различные варианты. Здесь все зависит от желаемого количества комнат, их предназначения, что определяется составом семьи и требованиями владельцев. Однако данные строения требуют особого внимания к определению варианта хода из дома в гараж и типа конструкции лестницы.
Мансарда может выступать в роли гостиной, кабинета или спальни
Комфортный и удобный подъем на этаж обеспечивает лестница с большим углом наклона. Следует учесть, что такая конструкция требует большого количества свободной территории. Разумным выходом из подобной ситуации является обустройство под лестницей практичной кладовой, книжных стеллажей или вместительного шкафа для одежды или бытовых предметов.
Компактную конструкцию имеет винтовая лестница. Однако она не отличается удобством. Но в случае выбора такой конструкции требуется продумать крутизну спирали, оптимальную ширину ступеней и высоту проступей.
Вход в гараж можно организовать непосредственно из дома. В этом случае необходимо продумать конструкцию тамбура. Должны быть предусмотрены мероприятия по снижению уровня шума и обеспечению надежного барьера от проникновения в жилое помещение запахов топлива и угарного газа. Проект гаража на две машины с мансардой владельцы оценят по достоинству во время непогоды. Несмотря на это, более рациональным все равно считается один вход в гараж с улицы.
Проекты домов из бруса с мансардой
Шикарный особняк из оцилиндрованного бруса
Уже только проекты домов из бруса с мансардой выглядят эффектно, оригинально. А готовые строения просто поражают воображение. Кроме того, что красивы, они еще уютны, комфортны. Недаром же наши предки оценили этот стройматериал еще много веков назад, сооружая свои жилища именно из бревен.
В последнее время жилье из бруса строят все больше людей – модный, необычный дизайн, стильный, креативный вид привлекает. Но главное – выгодно, а жить в нем комфортно. Фото проектов домов можно посмотреть здесь.
Дома из бруса имеют очень много достоинств
Сочетание камня и бревна сделает дом прочнее
Каждая постройка продумана в дизайнерском оформлении, одинаковых не найдешь. А если еще и хозяин пофантазирует, то может получиться просто сказочный теремок. Разве можно устоять от соблазна посидеть в комнатке со стеклянной стеной в холодный зимний вечер или в теплый летний, полюбоваться природой за окном?
Интерьеры домов из бревна не перестают удивлять своей красотой
Дома из бруса отлично зарекомендовали себя как дачные постройки, так и как полноценное жилье для круглогодичного проживания. Типовые проекты для таких срубов с мансардой разработаны для больших одноэтажных, двухэтажных зданий, для компактных 6х9, 8х8 метра дачных домиков.
Строения из бруса всегда уникальны. Ведь требования, которым полностью отвечают:
- оригинальность;
- красота:
- востребованность;
- недорогая цена;
- скорость выполнения работ.
Строения из бревна всегда уникальны
Дома из бруса возводятся очень быстро
Строятся здания из высокотехнологических материалов, таких как профильный брус. Для его изготовления используется хвойная древесина. Брус из внутренней стороны, как правило, строганный, плоский, а внешняя его сторона может быть полуовальной. Профильный брус может быть как для зимних построек, так и для дачных. Отличается толщиной. Толщина до 200 миллиметров – это брус для капитальных строений.
Как видим — практически бесполезный, холодный чердак может превратиться в уютную комнату, где можно уединиться, принять гостей за чашечкой кофе, или обустроить комфортную спальню. Да и снаружи такое сооружение значительно улучшит внешний вид особняка. Мансарда позволит сделать любой дом уникальным, оригинальным.
Бесплатные проекты домов с мансардой и гаражом можно выбрать в сети, их там множество на любой вкус.
Шикарное загородное имение с мансардой и большим гаражом




































