Ассортимент
Продукция представлена широко, т. к. извлечение пиролизного газа известно довольно давно и технология апробирована в химической промышленности. Как правило, большинство крупных производителей котельного оборудования имеют, в том числе, и линейку котлов длительного горения. В таблице ниже мы указали наиболее востребованное отопительное оборудование российских, украинских и немецких производителей. Перед рассмотрением конкретной модели настоятельно рекомендуется провести расчет мощности котла с помощью нашего небольшого онлайн-калькулятора. Популярные модели пиролизных котлов для частных домов
| Наименование котла | Краткое описание | Модель | Мощность / примерная отапливаемая площадь, кВт/м2 | Примерная цена, руб. |
| Атом, Мотор Сич | Украинские, для дров размером (380–1000)×(100–410) мм и влажностью до 50 %. Стенки из стали 6–10 мм, защищены керамобетоном | МС-16 | 8–19/80–190 | 120 000 |
| МС-25 | 13–30/130–300 | 138 000 | ||
| МС-32 | 16–38/160–380 | 162 000 | ||
| Теплогарант, Буржуй К | Российские одноконтурные котлы, отличаются низкой стоимостью | Стандарт Т-10 | 10/100 | 40 000 |
| Стандарт Т-20 | 20/200 | 56 000 | ||
| Стандарт Т-30 | 30/300 | 69 000 | ||
| Атмос (Atmos) | Чешское оборудование из стали толщиной 3–8 мм, отдельные элементы которого защищены керамическими блоками | DC 15E | 10–15/100–150 | 72 000 |
| DC 18S | 14–20/140–200 | 81 000 | ||
| DC 22S | 15–22/150–220 | 94 000 | ||
| DC 25S | 17–25/170–250 | 96 000 | ||
| Вулкан (Vulcan) | Украинские одноконтурные из стали толщиной 5 мм. Форсунка и зольник изготовлены из высокопрочного жаростойкого бетона | ECO 15 | 15/80–100 | 81 000 |
| ECO 20 | 20/150–200 | 85 000 | ||
| ECO 25 | 25/200–250 | 87 000 | ||
| ECO 30 | 30/250–300 | 91 000 | ||
| Диво | Российские пиролизные котлы, могут комплектоваться электроТЭНом, автоматическим или ручным регулятором тяги | 10 | 8–12/100 | С ручным регулятором тяги: с ТЭНом – 55 000, без ТЭНа – 49 000. С автоматическим регулятором тяги: с ТЭНом – 66 000, без ТЭНа – 59 000 |
| 18 | 12–18/185 | С ручным регулятором тяги: с ТЭНом – 65 000, без ТЭНа – 59 000. С автоматическим регулятором тяги: с ТЭНом – 76 000, без ТЭНа – 69 000 | ||
| 30 | 18–30/300 | С ручным регулятором тяги: с ТЭНом – 82 000, без ТЭНа – 75 000. С автоматическим регулятором тяги: с ТЭНом – 91 000, без ТЭНа – 84 000 | ||
| Траян (некоторые пишут Троян) | Российские котлы длительного горения с возможностью подключения электроТЭНа | Т10 | 10/90 | 47 000 |
| Т15 | 15/120 | 51 000 | ||
| Т20 | 20/120–220 | 56 000 | ||
| Т30 | 30/240–330 | 70 000 | ||
| Buderus (Будерус) | Немецкие одноконтурные котлы | Logano S121-2 21 | 21/210 | 163 000 |
| Logano S121-2 26 | 26/260 | 166 000 | ||
| gano S121-2 32 | 32/320 | 177 000 | ||
| Viessmann (Виссманн) | Еще один титулованный немецкий производитель котлов из стали толщиной не менее 8 мм | Vitoligno 100-S VL1A024 | 25/250 | 170 000 |
| Vitoligno 100-S VL1A025 | 30/300 | 220 000 | ||
| Гейзер | Российские одноконтурные (ПК) или двухконтурные (ПК2) котлы длительного горения | ПК-10 (ПК2-10) | 10/100 | 48 000 (51 000) |
| ПК-15 (ПК2-15) | 15/150 | 53 000 (56 000) | ||
| ПК-20 (ПК2-20) | 20/200 | 59 000 (61 000) | ||
| ПК-30 (ПК2-30) | 30/300 | 72 000 (76 000) | ||
| БТС | Украинские котлы из стали толщиной 5 мм (класс стандарт) и 6 мм (класс премиум). Керамическая футеровка | БТС-15 | 15/180 | 117 000 |
| БТС-20 | 20/230 | 121 000 | ||
| БТС-25 | 25/280 | 139 000 |
Предлагаем вам посмотреть небольшое видео о работе котлов Траян.
Немного визуализации работы пиролизных котлов Будерус – на ролике ниже.
И еще о довольно популярных котлах от ТеплоГаранта – Буржуй К.
Да, кстати, есть модели, которые рассчитаны на работу с разным топливом. Это может быть уголь, торф и даже пеллеты. Использование пеллетных котлов позволяет в значительной мере автоматизировать процесс подачи топлива.
Что такое пиролиз?
Под пиролизом подразумевается процесс получения и последующего сжигания горючего газа. Пиролиз — характерный процесс для твердотопливных котлов. Топливо помещают в закрытую камеру и постепенно уменьшают количество воздуха в ней. Дрова или уголь начинают тлеть. Углекислый газ, выделяемый во время сгорания топлива, поступает в другой отсек и смешивается с нагретым до определенной температуры воздухом. Происходит повторное горение. Основное преимущество пиролиза: он увеличивает количество времени горения и, соответственно, количество тепла. На открытом воздухе любое горючее сгорает быстро и выделяет минимальное количество тепла. В 50- годах прошлого века инженеры изобрели схему новейшего оборудования, подходящего для пиролиза. Из-за дороговизны и необоснованности, к разработке не приступили.
Выполнение вычислений
Первым делом нужно подобрать размеры проема форсунки. Самый простой способ – приобрести готовое изделие, рассчитанное под определенную мощность, такие имеются в продаже для установок разных производителей, например, ATMOS. Другой путь несколько труднее, зато гораздо дешевле: изготовить проем необходимого сечения в шамотном кирпиче, который будет уложен на днище топки. Габаритные размеры щелевидного проема для разных значений мощности представлены в таблице 1.
Таблица 1
| Потребная мощность, кВт | 25 | 32 | 50 | 80 | 100 |
| Длина проема, мм | 120 | 140 | 150 | 200 | 200 |
| Ширина проема, мм | 30 | 30 | 30 | 30 | 40 |
Самодельный пиролизный котел длительного горения можно изготавливать с произвольными размерами топки, которые рассчитываются по такой схеме:
- Теплота сгорания древесины – 2,8 кВт/кг, плотность – 400 кг/м3. Чтобы обеспечить мощность 10 кВт, нужно за 1 час сжигать 10 / 2,8 = 3,6 кг дров.
- Учитывая, что между поленьями в топке остается пустое пространство, нужно принять коэффициент заполнения 0,5. Тогда полезный объем камеры на 1 час работы составит: 3,6 / 400 / 0,5 = 0,018 м3.
- Приняв длину полена равной 0,6 м, а высоту первичной камеры – 0,5 м, высчитывается ее полезная ширина на 1 час работы: 0,018 / 0,6 / 0,5 = 0,06 м.
- Чтобы загружать топливо 1 раз в 10 часов, полезный объем должен быть: 0,018 х 10 = 0,18 м3. Тогда при прежних значениях глубины и высоты полезная ширина будет: 0,18 / 0,6 / 0,5 = 0,6 м. Окончательные габариты – 0,6 м х 0,6 м х 0,5 м.

Самодельный пиролизный котел
Следующий шаг – подбор вентилятора – нагнетателя, который устанавливается на самодельные пиролизные котлы и обеспечивает подачу воздуха в обе камеры. Устройства подбираются по производительности, которая зависит от мощности установки, эти данные можно взять по Таблице 2.
Таблица 2
| Мощность установки, кВт | 25 | 32 | 50 | 80 | 90 | 100 |
| Производительность нагнетателя, м3/ч | 98,5 | 195,9 | 242,2 | 253,2 | 284,8 | 316,5 |
| Полезный объем топки, м3 | 0,22 | 0,24 | 0,35 | 0,42 | 0,47 | 0,52 |
Дымовые газы, покидающие вторичную камеру, имеют достаточно высокую температуру. Чтобы не выбрасывать это тепло на улицу впустую, применяется жаротрубная схема изготовления пиролизного котла. В соответствии с ней, дымовые газы, проходя через дымогарные трубы теплообменника, охлаждаются до температуры 150–200 ⁰С, отдавая свою теплоту водяной рубашке. Чтобы рассчитать полезную площадь теплового обмена, нужно определить такие исходные данные:
- температуру теплоносителя в подающем и обратном трубопроводах t1 и t2;
- температуру дымовых газов на входе в теплообменник и на выходе из него Т1 и Т2.
Далее, определяется разность температур ∆t= t1 – t2 и ∆Т = Т1 – Т2. После этого можно посчитать величину температурного напора τ, ⁰С:
τ = (∆Т – ∆t) / ln (∆Т / ∆t)
Площадь поверхности теплообмена S(м2) находят по формуле:
S = Q / k / τ
В этой формуле:
- Q– потребная мощность котельной установки;
- k – коэффициент передачи теплового потока, принимается 30 Вт/м2 ⁰С.
Проверить результат можно по Таблице 3, в которой представлены укрупненные значения площади поверхности теплообмена в зависимости от мощности агрегата.
Таблица 3
| Мощность котла, кВт | 25 | 32 | 50 | 80 | 100 |
| Smin, м2 | 4,5 | 6,3 | 8,5 | 14,5 | 16,5 |
| Smax, м2 | 5,2 | 7,8 | 10,2 | 15,2 | 16,7 |
Изготавливая пиролизные котлы длительного горения своими руками, мастера зачастую устанавливают патрубок дымохода «на глазок», в то время как от правильной работы дымоходной трубы зависит КПД самого агрегата. Поэтому площадь сечения трубы, а потом и ее диаметр лучше определить по формуле:
F = L / 3600ϑ
В этой формуле:
- ϑ – скорость дымовых газов, принимается равной 0,5 м/с;
- L – расход газов, соответствует производительности вентилятора, м3/ч;
- F – площадь сечения трубы дымохода, м2.
Через формулу площади круга находят значение диаметра трубы.
Пиролизный котел – схема изготовления, основные этапы
Чтобы самостоятельно собрать газогенераторный отопительный агрегат, следует придерживаться следующих требований:
Необходимые элементы следует резать посредством болгарки. Отверстие для загрузки топлива размещается несколько выше, чем у твердотопливных устройств. Для осуществления контроля над поступающим в топочную камеру количеством воздуха, необходимо вмонтировать ограничитель. Его можно изготовить с помощью трубы диаметром 70 мм, при этом длина должна быть немного больше, чем корпус котла. С помощью сварочного аппарата приваривается стальной диск, который совместно со стенками трубы должен образовывать зазор примерно 40 мм. Чтобы установить в крышке котла ограничитель, нужно проделать соответствующее отверстие. Оно должно иметь прямоугольную форму. Отверстие закрывается дверцей, укомплектованной накладкой из стали. Это обеспечит надежное прилегание. Ниже располагается отверстие, предназначенное для удаления воды. С помощью трубогиба необходимо согнуть трубу, предназначенную для перемещения внутри котла теплоносителя. Таким образом обеспечивается максимальная отдача тепла. Регулирование количества теплоносителя, направляемого в устройство, может осуществляться посредством вмонтированного снаружи вентиля. Как только будет выполнен первый запуск оборудования, в продуктах горения не должно быть угарного газа. Если данное условие соблюдается, обвязка пиролизного котла (схема указана) сделана правильно
Важно регулярно следить за состоянием сварных швов устройства и своевременно удалять с него образовавшуюся копоть и золу. Прекрасным вариантом может стать совместное использование пиролизного котла не с классическим водяным отоплением, а с системами воздушного обогрева
В результате передача воздуха будет производиться по трубопроводам, а его возврат в систему – по полу. Такая система обладает многочисленными достоинствами: при сильных морозах не замерзает, во время отъезда хозяина отсутствует необходимость слива теплоносителя
Прекрасным вариантом может стать совместное использование пиролизного котла не с классическим водяным отоплением, а с системами воздушного обогрева. В результате передача воздуха будет производиться по трубопроводам, а его возврат в систему – по полу. Такая система обладает многочисленными достоинствами: при сильных морозах не замерзает, во время отъезда хозяина отсутствует необходимость слива теплоносителя.
Принцип работы пиролизных котлов и их особенности
Создавая пиролизные котлы своими руками, люди стремятся сэкономить денежные средства в своем кошельке. Если газовое оборудование стоит довольно дешево, то твердотопливные агрегаты просто поражают своей ценой. Более-менее приличная модель мощностью 10 кВт обойдется в 50-60 тысяч рублей – дешевле провести газ, если рядом проходила бы газовая магистрально. Но если ее нет, то выходов два – приобретать заводское оборудование или делать его самостоятельно.
Изготовить пиролизный котел длительного горения своими руками можно, но сложно. Давайте для начала разберемся, для чего вообще нужен пиролиз. В обычных котлах и печах дрова сгорают традиционным способом – при высокой температуре, с выбросом продуктов сгорания в атмосферу. Температура в камере сгорания составляет порядка +800-1100 градусов, а в дымоходе – до +150-200 градусов. Таким образом, солидная часть тепла просто улетает наружу.
Прямое сгорание дров применяется во многих отопительных агрегатах:

Твердотопливные пиролизные котлы могут использовать несколько видов топлива, в том числе отходы деревообрабатывающего производства и сельскохозяйственной переработки.
- Твердотопливные котлы;
- Печи-камины;
- Камины с водяными контурами.
Главным преимуществом данной методики является то, что она отличается простотой – достаточно создать камеру сгорания и организовать отвод продуктов сгорания за пределы оборудования. Единственным регулятором здесь становится дверка поддувала – регулируя просвет, мы можем отрегулировать интенсивность горения, тем самым воздействуя на температуру.
В пиролизном котле, собранном своими руками или купленном в магазине, процесс сгорания топлива идет несколько по-другому. Дрова здесь сгорают при низкой температуре. Можно сказать, что это даже не горение, а медленное тление. Древесина при этом превращается в подобие кокса, одновременно выделяя горючие пиролизные газы. Эти газы отправляются в камеру дожигания, где сгорают с выделением большого количества тепла.
Если вам кажется, что данная реакция не даст особого эффекта, то вы глубоко заблуждаетесь – если заглянуть в камеру дожигания, то здесь будет видно ревущее пламя ярко-желтого, почти белого, цвета. Температура сгорания – чуть выше +1000 градусов, а тепла в этом процессе выделяется больше, чем при стандартном горении древесины.
Для того собранный своими руками пиролизный котел смог показать максимальную эффективность, необходимы дрова с низким содержанием влаги. Влажная древесина не даст оборудованию выйти на полную мощность.
Реакция пиролиза знакома нам еще со школьного курса физики. В учебнике (а может и в лабораторном кабинете) многие из нас видели интересную реакцию – древесина помещалась в стеклянную запечатанную колбу с трубкой, после чего колба нагревалась над горелкой. Через несколько минут древесина начинала темнеть, а из трубки начинали выходить продукты пиролиза – это горючие газы, которые можно было поджечь и понаблюдать за желто-оранжевым пламенем.
Аналогичным образом работает и пиролизный котел, собранный своими руками:

На одной загрузке топлива пиролизные котлы работают около 4-6 часов. Так что большим и стабильно пополняемым запасом дров стоит озаботиться заранее.
- В топке разжигаются дрова до появления устойчивого пламени;
- После этого доступ кислорода перекрывается, пламя гаснет почти полностью;
- Запускается дутьевой вентилятор – в камере дожигания появляется высокотемпературное пламя.
Устройство пиролизного котла довольно простое. Основными элементами здесь являются: камера сгорания, в которой складированы дрова, и камера дожигания, в которой сгорают продукты пиролиза. Передача тепла в отопительную систему осуществляется через теплообменник
В схеме пиролизного котла ему уделяется особое внимание
Все дело в том, что теплообменники в пиролизных котлах, собранных своими руками, устроены не так, как в газовом оборудовании. Продукты сгорания с воздухом проходят здесь через множество металлических труб, омываемых водой. Для увеличения эффективности котловая вода омывает не только сам теплообменник, но и все другие узлы – здесь создается своего рода водяная рубашка, которая отбирает излишки тепла от раскаленных элементов котельного агрегата.
Порядок изготовления пиролизного котла
Прежде чем приступать к изготовлению котла, ознакомьтесь с некоторыми полезными рекомендациями. При условии их соблюдения готовое оборудование будет максимально производительным, эффективным и экономичным.
Полезные рекомендации
- Систему нужно укомплектовать вентилем для регулирования интенсивности движения теплоносителя.
- Для увеличения теплоотдачи трубу теплоносителя лучше сделать изогнутой, к примеру, в форме змеевика.
- Проем для загрузки топлива должен иметь прямоугольную форму. При этом дверцу отверстия следует укомплектовать стальной накладкой для уплотнения.
- Для контроля интенсивности поступающего воздушного потока система укомплектовывается ограничителем.
Инструкция
Чертеж пиролизного котла
Первый шаг. Из листового металла вырезаем стенки корпуса котла в количестве 4 штук. В передней стенке вырезаем отверстия для топочной камеры и зольника.
Второй шаг. Вырезаем отверстия для трубников и дымососа.
Третий шаг. Соединяем вместе все металлические стенки, за исключением задней. Для этого используем сварочный аппарат. Тщательно отшлифовываем стыки между сторонами будущего отопительного котла.
Стенки котлаДверцаЗольник
Четвертый шаг. Собираем теплообменник котла в соответствии с представленной схемой. Свариваем трубы.
Котел
Пятый шаг. Вставляем теплообменник в корпус котла. Убеждаемся в герметичности соединений с помощью компрессора. При отсутствии течей привариваем заднюю стенку корпуса.
Шестой шаг. Устанавливаем решетку колосника. Она разделит корпус котла на 2 камеры. В одной (нижней) будет тлеть загрузка, во второй – сгорать газы. Нижнюю камеру укомплектовываем воздуховодом, а после обкладываем огнестойким кирпичом с каждой стороны.
Корпус пиролизного котла изнутри
Седьмой шаг. Монтируем дверцы зольной камеры и топливника. Они должны максимально плотно прилегать к корпусу.
Восьмой шаг. Устанавливаем собранный котел на предварительно выложенную кирпичную опорную площадку.
Девятый шаг. Подключаем дымоход. Трубу для отведения дыма рекомендуется обернуть минеральной ватой для утепления.
Десятый шаг. Подключаем к агрегату водяной контур.
Одиннадцатый шаг. Устанавливаем дутьевой насос.
КотелПиролизный котел своими руками
Дополнительно котел можно автоматизировать, установив систему температурных датчиков и регуляторов. Они будут контролировать интенсивность подачи воздуха.
Вытяжка около котлаБлок автоматики (подключен насос, вытяжка и датчики)
Как сделать пиролизный котёл своими руками
Технологический процесс изготовления котла пиролизного принципа действия включает выполнение слесарных и сварочных работ.
Необходимые материалы и инструмент
Для изготовления качественного агрегата необходим опыт в работе со следующими инструментами:
- аппарат электросварочный;
- дрель электрическая;
- угловая шлифмашина;
- набор слесарных инструментов — угольник, уровень.
Потребуются материалы и комплектующие:
- металл:
- листовой, толщина 4 мм, 7,5 м²;
- труба — 8 м (диаметр 57 мм, толщина стенки 3,5 мм);
- полоса сталь (толщина 4 мм, ширина 20 мм) — 7,5 мп;
- полоса сталь (толщина 4 мм, ширина 30 мм) — 1,5 мп;
- полоса сталь (толщина 5 мм, ширина 80 мм) — 1 мп;
- шамотный (огнеупорный) кирпич — 15 шт;
- профтруба 60×30 (толщина стенки 2 мм) — 1,5 мп;
- профтруба 80×40 (толщина стенки 2 мм) — 1 мп;
- круг отрезной d 230 — 10 шт.;
- круг шлифовальный d 125 — 5 шт.;
- электроды — 5 пачек;
- датчик температуры.
Им автоматически выполняются манипуляции с заслонкой: открытие (для увеличения температуры горения) и закрытие (при достижении температурой максимального значения)
Температурный датчик — это механическое устройство контроля количества воздуха, проходящего в камеру сгорания.
Продуктивность работы котла зависит от функционирования дымоотводящей трубы. Для обеспечения хорошей тяги дымоотвод должен соответствовать требованиям качества:
- высота не меньше 5 метров;
- хорошее утепление;
- отсутствие резких изгибов;
- отвод конденсата;
- простой доступ для чистки.
Чертежи и схемы устройства
Пиролизный котёл без принудительной вентиляции имеет наиболее простую схему. Энергонезависимость конструкции удешевляет эксплуатацию агрегата.
Схема пиролизного котла с естественным дымоотводом имеет вид:
Для повышения высокого КПД некоторые конструкции имеют двойные стенки основания
Котёл состоит из трёх основных камер:
- загрузочная, служащая для заброса топлива;
- камера дожига, куда подаётся вторичный воздух;
- теплообменник, выходящий в трубу.
Горение сырья направляет поток газа сверху вниз. При подаче воздуха под колосники в массив шамотного кирпича происходит дожиг горючих газов. Продукты распада уходят через теплообменник в дымоотвод. Регулировка тяги выполняется термодатчиком на выходе из котла с помощью цепочки, связанной с заслонкой подачи вторичного воздуха.
Подробную деталировку с размерами и допусками можно взять в стандартном чертеже:
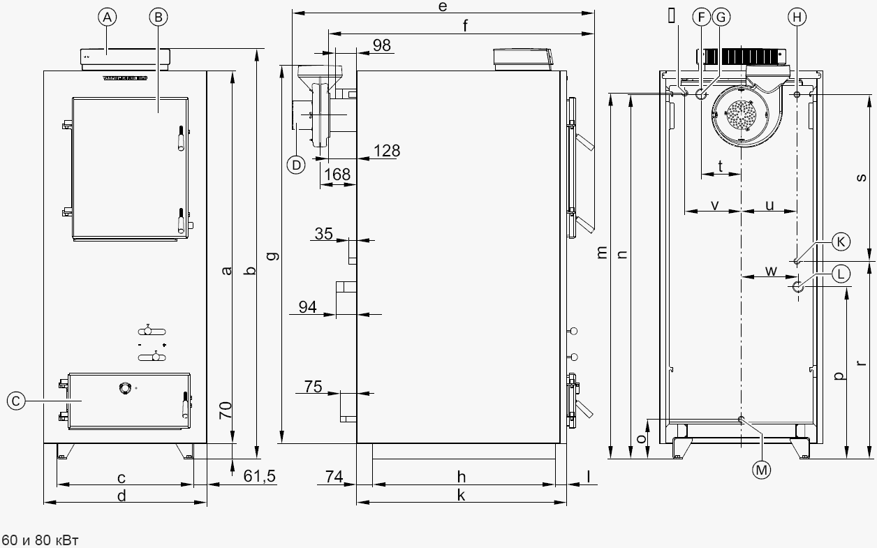
A — контроллер контура котла; B — дверца загрузки; C — крышка зольника; D — дымоотвод; E — муфта для датчика температурного предохранителя; F — патрубок предохранительного клапана; G — подающая магистраль контура; H — подвод холодной воды в теплообменник; L — обратная магистраль контура котла; M — расширительный бак
Пошаговая инструкция изготовления агрегата
Изготовления пиролизного котла своими руками разделяется на этапы:
- Согласно чертежу выполняется разметка и нарезка деталей для корпуса. После «прихватывания» элементов производится контрольный замер, затем делаются сварочные швы. Установленные на свои места задняя панель и боковые стенки свариваются с двух сторон, зачищаются, обрабатываются сварочным герметиком.
- Производится монтаж труб теплообменника.
- После наваривания внешней стенки и обечаек дверок устанавливается механический регулятор контроля теплоносителя.
- Дымоход собирается наращиванием трубы Последующую часть нужно вставлять внутрь предыдущей, чтобы конденсат не попадал на внешнюю сторону. Готовая конструкция окрашивается огнеупорной краской.
Изготовление, короткое руководство
- Шаг первый разобравшись с чертежами и закупив материалы, необходимо «раскроить» детали будущего агрегата. Обязательно каждую подписать.
- Шаг второй сделать необходимые отверствия с помощью электролобзика или плазмореза
- Третий шаг – начинаем сварку из камеры дожига, затем нужно приварить камеру газификации и отверстие под горелку. Дальше место для трубки плазменника.
- Следующим шагом будет приваривание трубок теплообменника. Их необходимо обварить с обеих сторон.
- Следующим приваривается внешний кожух, который можно сделать из более тонкого металла (3 мм). Между кожухом и внутренней начинкой привариваются распорки. Это необходимо для того, чтобы исключить деформацию металла.
- Следующими – привариваются двери для нижней и верхней камер, устраиваются их уплотнение из стеклокерамики и дополнительные блоки блокировки. Это необходимо, так как площадь двери большая.
- Блокировка камеры дожига выполняется из шамотного кирпича. Уплотнения ручек стеклокерамикой. Дно камеры газификации выкладывается шамотным кирпичом.
- Не забудьте установить уплотнитель на ручку прямой тяги.
- Устраивается съемный бачок для очистки сажи из дымохода.
- Вентилятор устанавливается после этого. Лучше использовать центробежный вентилятор мощностью побольше.
- Следующий шаг – покрыть грунтовкой агрегат. Затем его нужно будет покрыть термоизоляционным экраном.

Самодельный пиролизный котел
Плюсы и минусы
К отрицательным характеристикам твердотопливного котла относят:
- очень высокая стоимость;
- необходимость подготавливать дрова, которые должны быть абсолютно сухими;
- работает от электрической сети.
Несмотря на минусы, у газогенераторного устройства есть и плюсы. Это:
- комфортное тепло с пиролизным котлом;
- достаточно прост в использовании;
- выделяется очень маленькое количество вредных элементов;
- способен довольно долго работать после того, как будет положено топливо;
- можно применять при любом виде системы подачи тепла;
- можно полностью автоматизировать процесс;
- применяется для утилизации таких материалов, как пластмасса, резина и полимеры.
Данный вид твердотопливного кола для отопления в своей особенности конструкции имеет несколько участков: отделения для топки, теплообменник и узел, который подводит воду к устройству.
При самостоятельно сборке пиролизного котла, необходимо правильно сделать схему и чертеж. Затем по ней собрать агрегат, который сразу же можно проверить, а в дальнейшем использовать в быту. Для создания необходимо лишь проследить за герметизацией труб отопления, которые подводят воду, чтобы избежать различных неприятностей в будущем. При правильной сборке котла длительного горения, оборудование очень быстро нагревается до нужной температуры, потратив всего полчаса.

Фото схемы пиролизного котла
Любая газогенераторная машина в своей конструкции содержит две камеры. Одна камера котла служит для наполнения ее необходимым топливом, где происходит разложение на сухие остатки и горючий газ. Он перемещается в следующее отделение. Внутрь оборудования подается дополнительный воздух с помощью специального вентилятора, для того, чтобы эффективнее происходило горение дров. Дым, образующийся в данном процессе, удаляется через установленный дымосос. Камеры отделены между собой колосником, изготовленным из чугуна.
При больших значениях температурного режима и отсутствия кислорода, из древесины выделяется газ, при смешивании его с потоками воздуха происходит нагревание теплообменника до 1200 градусов. После этого тепло передается теплоносителю системы. Отработанные газы выходят через специальную трубу дымохода. В состав входит смесь паров воды и углекислого газа. В дымоходе рекомендуется сделать слой материала, который состоит из минеральной ваты, покрытой сверху специальной фольгой. Он делается для того, чтобы при охлаждении не образовывались деготь и конденсат, которые могут оказать довольно негативное воздействие на трубу.
Все отделения котла на пиролизе оснащены огнеупорочной футеровкой, которая выкладывается из шамотного кирпича. Именно она создается благоприятные условия для сгорания топлива в пиролизном котле.
Дополнительное оборудование
К сожалению, пиролизные котлы не являются энергонезависимыми. Из-за реверсного потока газов требуется принудительный наддув. Для моделей мощностью до 15 кВт он реализуется дутьевым вентилятором, который монтируется на нижней дверце. При этом пополнение загрузки в процессе горения невозможно.
Более мощные котлы комплектуются вентилятором-дымососом, который устанавливается на верхней стенке корпуса на выходе дымоходного канала. При этом исключается появление обратной тяги и дверцу камеры газификации можно без последствий открывать даже в процессе горения.
Особое внимание нужно уделить температуре теплоносителя внутри рубашки. После выхода котла на режим она не должна быть меньше 60 °С для исключения образования конденсата
Эта задача решается путём установки узла автоматической рециркуляции, подмешивающей воду из подачи в обратку. Также требуется установка группы безопасности для закрытых отопительных систем и основного циркуляционного насоса. опубликовано
P.S. И помните, всего лишь изменяя свое потребление — мы вместе изменяем мир! econet
Создаём пиролизный котёл
Разбор схем и чертежей
Чтобы создать пиролизный котёл своими руками, важно тщательно изучить схемы и чертежи. Именно по ним вы сможете подобрать конструкцию и максимально точно определить количество нужных для строительства материалов. На схеме и чертеже пиролизного котла отображены основные элементы, без которых невозможно построить конструкцию своими руками:
На схеме и чертеже пиролизного котла отображены основные элементы, без которых невозможно построить конструкцию своими руками:
На схеме и чертеже пиролизного котла отображены основные элементы, без которых невозможно построить конструкцию своими руками:
- регуляторы,
- дымовые каналы,
- отверстия для воздуха,
- трубы для подачи воды,
- трубы для отвода воды,
- камера сгорания,
- вентилятор.
Очень важно при изготовлении пиролизного котла своими руками придерживаться чертежей и схем. Дело в том, что это сложное устройство, в котором будут происходить высокотемпературные процессы. Поэтому малейшая ошибка может обратиться аварийной ситуацией
Поэтому малейшая ошибка может обратиться аварийной ситуацией
Поэтому малейшая ошибка может обратиться аварийной ситуацией.
Для частного дома будет достаточно пиролизного котла, мощность которого составляет 40 кВт. Не стоит стремиться к большой мощности. Дело в том, что в таком случае конструкция становится значительно сложнее. Мало того, конечная стоимость также увеличивается.
Выбор мощности пиролизного котла, который вы собираетесь создать, влияет на размер ключевых деталей на чертеже или схеме. От правильного подбора размеров зависит нормальное функционирование устройства.
Совет. Если вы владелец маленького домика, то можно остановить свой выбор на котле с мощностью в 30 кВт. Этого будет более чем достаточно.
Инструменты, необходимые для изготовления котла своими руками
Чтобы своими руками сделать конструкцию, работающую на основе пиролизной реакции по чертежам и схемам, необходимо запастись некоторым инвентарём. Для воплощения задумки в жизнь, вам понадобятся следующие материалы и инструменты:
- болгарка,
- сварочный аппарат,
- шлифовальные круги,
- электрическая дрель,
- электроды,
- трубы различного диаметра,
- полосы стали,
- термодатчик,
- вентилятор,
- металлические листы.
Это базовый набор, который необходим, чтобы создать пиролизную систему своими руками по схемам и чертежам. Конечно же, в процессе работы может возникнуть необходимость в дополнительных инструментах и материалах.
Внимание. Толщина стали для корпуса должна быть 3 мм, а лучше 4
Тонкости сборки
После того как вы выберите подходящую схему, можно будет приступить к сборке. При этом необходимо придерживаться следующих рекомендаций:
Отверстие, через которое в топку будут попадать дрова и брикеты должно располагаться немного выше, чем у обычных твердотопливных конструкций. Не забудьте про ограничитель. Его главная задача — это контролировать количество воздуха. Для его создания нужна семидесятимиллиметровая труба в сечении. Её длина должна быть больше корпуса. К ограничителю приваривается диск. Элемент должен быть выполнен из стали. Место приваривания — низ конструкции. В результате у вас получится зазор в 40 мм. Чтобы установка ограничителя стала возможной необходимо сделать дырки в соответствующих местах крышки. Лучшей формой для отверстия, через которое будут загружаться дрова является прямоугольник
При этом важно не забыть о дверце. Она должна иметь специальную накладку для лучшей фиксации
Также в конструкции необходимо предусмотреть отверстие, через которое будет удаляться зола
Трубу для теплоносителя нужно сделать с изгибом
Также в конструкции необходимо предусмотреть отверстие, через которое будет удаляться зола. Трубу для теплоносителя нужно сделать с изгибом
Это позволит повысить отдачу тепла.
Ещё одним важным элементом согласно любой схеме и чертежу является вентиль. С его помощью вы сможете контролировать количество теплоносителя, поступающего внутрь. Поэтому лучше всего расположить его в удобном и легкодоступном месте. Сам алгоритм создания пиролизного котла своими руками по чертежам вы можете увидеть на видео внизу.
После сборки огромное значение имеет первый запуск. Лишь после того, как вы убедитесь, что в продуктах горения нет угарного газа, можно будет утверждать, что всё сделано правильно. Для этого лучше использовать специальное оборудование.
Создать котёл, работающий на основе принципа пиролиза можно своими руками. Но перед тем как начать работу необходимо написать проект. Основную роль в нём будет играть рисунок со схемой изделия и размерами.
Обсудить статью на форуме





































