Как посчитать объем помещения
Объём — количественная черта места. Объём помещения определяется его формой и линейными размерами. С понятием объёма плотно сплетено понятие вместимость, другими словами объём внутреннего места сосуда, упаковочного ящика и т. п. Принятые единицы измерения — в ситме измерений СИ и производных от неё — кубический метр м3, кубический сантиметр, литр. Для вас понадобится Для измерения объема помещения для вас будет нужно рулетка, лист бумаги, калькулятор, ручка. 1 Каждое помещение, например комната, представляет собой, с геометрической точки зрения прямоугольный параллелепипед.
Параллелепипед — это большая фигура, у которой 6 граней
и неважно какая из их есть прямоугольником. Формула нахождения объёма прямоугольного параллелепипеда: V=abc. Количество прямоугольного параллелепипеда равен произведению 3-х его измерений
Не считая этой формулы может быть измерить количество помещения умножив площадь пола на высоту
Количество прямоугольного параллелепипеда равен произведению 3-х его измерений. Не считая этой формулы может быть измерить количество помещения умножив площадь пола на высоту.
2 Итак приступайте к вычислениям объема помещения. Определите длину одной стены ,позже определите длину 2-ой стены. Измерения проводите по полу, на уровне плинтуса.Ленту рулетки держите ровно.
На данный момент определите высоту помещения, для этого подойдите к одному из его углов, и точно померьте высоту по углу от пола до потолка. Приобретенные данные запишите на листочек, чтоб не запамятовать.
Пошаговый расчет площади комнаты
Шаг 1. Первым делом необходимо приготовить все измерительные инструменты, а также листок и ручку. На бумаге можно предварительно начертить схему комнаты, стараясь максимально сохранить геометрию и отобразить все ниши и детали помещения. Рулетка используется максимально длинная.
Подготовка всего необходимого
Шаг 2. Измеряется длина комнаты. Если она настолько велика, что рулетки не хватает, то замеры снимаются поэтапно. Для начала производится замер на максимальную длину рулетки, в месте ее окончания делается отметка, от которой потом снова производится замер до конца комнаты.
Для начала нужно измерить длину комнаты
Шаг 3. Измеряется ширина комнаты (вдоль стены с меньшей длиной). Рулетка располагается под прямым углом к ранее измеряемой стене комнаты (длине). Полученные данные записываются.
Измеряется ширина комнаты
Шаг 4. Полученные показатели перемножаются между собой. Для этих целей рекомендуется использовать калькулятор. При необходимости значение площади округляется в большую сторону.
Полученная цифра округляется в большую сторону
Шаг 5. Если необходимо измерить площадь сложной геометрически комнаты, то для начала сложная фигура делится на несколько простых – квадратов, треугольников, прямоугольников. Объект изображается на листочке бумаги схематически, схематически делится.
Комната разделена на 4 прямоугольника
Шаг 6. Производится замер каждой фигуры в отдельности. Например, прямоугольники, треугольники.
Каждая фигура замеряется отдельно
Шаг 7. Производится вычисление площади каждой фигуры. Далее все полученные значения суммируются и получается полная точная площадь пола комнаты.
Пример расчета площади треугольника
Калькулятор расчета площади земельного участка неправильной формы
Данный онлайн калькулятор помогает произвести расчет, определение и вычисление площади земельного участка в онлайн режиме. Представленная программа способна правильно подсказать, как выполнить расчет площади земельных участков неправильной формы.
Важно! Важ участок должен приблизительно вписываться в окружность. Иначе расчеты будут не совсем точными
- Указываем все данные в метрах
- A B, D A, C D, B C— Размер каждой стороны делянки.
- Согласно введен данным, наша программа в онлайн режиме выполнить расчет и определить, площадь земельных угодий в квадратных метрах, сотках, акрах и гектарах.
- Методика определения размеров участка ручным методом
Далее при помощи измерительной рулетки определяем ширину и длину делянки. Как правило, достаточно выполнить замер одной ширины и одной длины, для прямоугольных или равносторонних участков.
Для примера, у нас получились следующие данные: ширина – 20 метров и длина – 40 метров.
Далее при помощи простой арифметики, мы разделим наш параметр S на 100. Готовый результат и станет равен размеру делянки в сотках. Для нашего примера, этот результат – 8.
https://www.youtube.com/watch?v=upload
Таким образом, получаем, что площадь участка составляет восемь соток.
В том случае, когда территория угодий очень большая, то лучше всего выполнять все измерения в других единицах – в гектарах. Согласно общепринятым единицам измерения – 1 Га = 100 соток. К примеру, если наша земельная делянка согласно полученным измерениям составляем 10 000 м², то в этом случае его площадь равна 1 гектару или 100 соткам.
Если Ваш участок неправильной формы, то в этом случае количество соток напрямую зависит от площади. Именно по этой причине при помощи онлайн калькулятора Вы сможете правильно рассчитать параметр S делянки, и после этого разделив полученный результат на 100. Таким образом, Вы получите расчеты в сотках. Такой метод предоставляет возможность измерять делянки сложных форм, что весьма удобно.
- Общие данные
- Расчет площади земельных участков базируется на классических расчетах, которые выполняются согласно общепринятым геодезическим формулам.
- Всего доступно несколько методов для расчета площади земельных угодий – механический (рассчитывается по плану при помощи мерных палеток), графический (определяется по проекту) и аналитический (при помощи формулы площади по измеренным линиям границ).
На сегодняшний день самым точным способом заслуженно считается – аналитический. Используя данный метод, ошибки при расчетах, как правило, появляются из-за погрешностей на местности измеренных линий. Данный способ является также и достаточно сложным, если границы криволинейные или количество углом на делянке больше десяти.
И самый доступный и простой способ, и наиболее популярный, но и в тоже время самой большой погрешностью – механический способ. Используя данный метод, Вы сможете легко и быстро выполнить расчет площади земельных угодий простой или сложной формы.
Узнаём площадь треугольного помещения
Когда другая часть комнаты располагается не перпендикулярно относительно основной площади, это означает, что между двумя прямоугольниками присутствует еще и треугольник, имеющий прямой угол.
В данном случае площадь треугольника вычисляют по формуле: S = (a х b):2 и прибавляют к общему итогу. Например, а = 2, b = 3, тогда S = (2х3): 2 =3 м².
Можно иначе определить площадь:
- Прежде вычисляют квадрату прямоугольника.
- Определяют площадь скошенного треугольного угла.
- Из квадратуры прямоугольника вычитают площадь треугольника.

В том случае, когда треугольник не имеет прямого угла, тогда используют формулу Герона S = √p(p — a)(p — b)(p — c).
Например, стороны его равны 5, 6 и 7 метров, тогда вычисления производят следующим образом:
- Узнают полупериметр треугольника p = (5+6+7):2 = 9.
- В формулу Герона подставляют цифровые значения и получают результат: √(9 х(9-7) х(9-6)х(9-5) =14,7 м².
Как посчитать площадь комнаты: помогут практические советы и рекомендации
Прежде чем приступить к расчету, следует подготовиться. Потребуется:
- Рулетка;
- Карандаш;
- Лист бумаги. Лучше воспользоваться блокнотом или тетрадью, в которую по мере необходимости будут заноситься все измерения и расчеты;
- Угольник. Желательно иметь в наличии изделие с большой длиной сторон, так как в этом случае качество замера будет более высоким;
- Линейку. Необязательно специально приобретать измерительный прибор. Для этой цели прекрасно подойдет длинный уровень, с помощью которого можно будет также проконтролировать отклонение от вертикали и горизонтали.
Рулетка может быть:
Механической.
Доступный измерительный прибор, с которым справиться каждый. Для получения точных значений замеры лучше выполнять вдвоем. Погрешность измерения стандартизирована. В качестве единицы измерения выступает миллиметр;

Электронной.
В процессе измерения используется пучок света. Чаще всего лазерный луч. Направив луч в определенную точку, можно получить расстояние между ней и местом своего расположения. В качестве единицы измерения используются миллиметры или сантиметры. Отдельные модели позволяют сразу получить квадратуру помещения без дополнительных расчетов. С измерением способен справиться один человек. Электронные приборы позволяют получить точные значения измеряемой величины за короткий промежуток времени.

Чтобы рассчитать площадь пола, следует определиться, из каких простых геометрических фигур он состоит.
Если речь идет о стандартной комнате в панельном доме, то пол, скорее всего, будет прямоугольным. Такие строения возводятся из типовых элементов, форма и размеры которых стандартизированы.
В кирпичных многоквартирных домах форма пола может быть различной. Поверхность следует условно разделить на простые фигуры, найти площадь каждый, а затем полученные значения сложить.

Чтобы не запутаться в последующем при переводе рассчитанной площади из одних единиц измерения в другие, стоит заранее узнать, как посчитываются квадратные метры комнаты. Для этого достаточно все измеренные линейные размеры сразу переводить в метры. Например, если длина одной стороны 500 см равна 5 м, то есть для перевода сантиметров в метры имеющее значение следует разделить на 100.
Площадь прямоугольного пола можно получить путем умножения длины помещения на его ширину. Если конфигурация помещения отличается от стандартной: имеются ниши прямоугольной формы, порядок расчета будет зависеть от их месторасположения:
За пределами помещения.
Такая ситуация возникает, если, например, убирается стенка между комнатой и балконом. Рассчитать суммарную площадь можно, мысленно разделив комнату на два прямоугольника площадью S1 и S Измерив стороны каждого из них, можно подсчитать квадратуру фигур. Суммарная площадь будет равна:
S=S1+S2;
Внутри помещения.
Расчет квадратуры каждого квадрата аналогичен первому варианту. Для нахождения суммарного значения от большего следует отнять меньшее, то есть:
S=S1-S2;
Внутри и снаружи помещения.
Такой вариант встречается редко. Чтобы выполнить расчет, комнату следует разделить на несколько прямоугольников. Квадратуру тех, что добавляют площадь, следует прибавлять, а те, что уменьшают – отнимать.

Стены в помещении, как правило, прямоугольной формы. Иногда встречается трапеция, например, на мансарде частного дома. Многие стараются эффективно распорядиться всем имеющимся объемом, а характерная трапецеидальная форма придает комнате особый шарм. Чтобы рассчитать сразу всю квадратуру стен, следует высоту стены Н умножить на периметр комнаты р.

Онлайн калькулятор для расчета площади заготовок
С помощью онлайн-калькулятора вы можете найти площадь заготовок имеющих форму:
- Круга,
- Прямоугольника,
- Поперечного сечения круглой трубы,
- Поперечного сечения квадратной трубы,
- Двутавра (балки),
- Швеллера,
- Уголка.
Для удобства работы, в каждом расчете присутствует графическое изображение с обозначениями. Для расчета нужно ввести данные в поля соответствующие обозначением на графическом изображении изделия.
Результатом расчета является площадь заготовки или сумма площадей нескольких заготовок с одинаковыми данными.
Обратите внимание, что вводные данные и результат расчета представлены в миллиметрах. Полученные данные вы можете использовать для расчета времени реза заготовки
Полученные данные вы можете использовать для расчета времени реза заготовки
Полученные данные вы можете использовать для расчета времени реза заготовки.
Данный расчет вы можете произвести на странице с калькулятором «Расчет времени реза заготовки»
Объем комнаты
Кубатура помещения, или объём в строительстве используется при подсчёте необходимой мощности отопления, вентиляции, кондиционирования комнаты. Объём измеряется в кубических метрах. Единица записывается как 1 м³. С точки зрения геометрии, помещение как фигура представляет собой шестигранник.
Рекомендуем: Виды и варианты устройства заборов для частных домов. Какие нормы по установке и размещению?
Измерив длину, ширину и высоту комнаты прямоугольной формы, перемножив полученные измерения, получают объём простого помещения.
Объём помещения сложной формы вычисляют следующим путём:
- пол комнаты разбивают на простые геометрические фигуры;
- вычисляют квадратуру каждой фигуры;
- полученные значения складывают и умножают на высоту до потолка.
Инструкция по расчету реечного потолка
Реечный потолок рассчитать не так сложно, как кажется на первый взгляд. Для этого достаточно выполнить несколько простых действий, с которыми справится даже начинающий домашний мастер, а также ознакомится с конструкцией системы.
Схема реечного потолка
Рассмотрим, из чего состоит реечный потолок:
- Подвес регулируемый.
- Профиль угловой.
- Траверса несущая.
- Планка декоративная.
Подготовительный этап
Прежде всего, необходимо подготовить инструмент:
- Рулетка.
- Карандаш.
- Бумага.
- Калькулятор.
После того как всё необходимое собрано, приступаем к расчетам площади потолка.
Так как площади пола и потолка, в основном, совпадают, то измерения можно проводить по полу.
Расчет площади помещения:
Площадь прямоугольной комнаты вычислить очень просто. Достаточно для этого умножить ширину помещения на его длину. Полученный результат будет выражаться в метрах квадратных.
Измерения выполняются рулеткой. Причем, для точности измерений лучше длину стены измерять с двух сторон.
План прямоугольного помещения
Если в помещении есть ниши правильной прямоугольной формы, то они измеряются и полученный результат прибавляется к общей площади комнаты.
Измерения длинны и ширины комнаты используем обычную или лазерную рулетку. Для обеспечения высокой точности, каждое измерение проводится два раза и в противоположном направлении. Если результаты замеров отличаются, то необходимо найти среднее арифметическое. Для этого складываем результаты двух измерений и делим на два.
Лазерная рулетка
Сложнее всего рассчитать площадь помещений неправильной формы или радиальными стенами. В этом случае её можно разбить на треугольники и сектора окружности.
Для подобных вычислений очень удобно использовать формулу Герона:
S=√(р(р-а)*(р-b)*(р-с)),
где р– полупериметр треугольника, р=(а+b+с)/2,
а, b, с – длины его сторон.
Площадь сектора окружности вычисляется по формуле S=1/2*PR, где R – длина дуги сектора, P – радиус сектора.
Помещение неправильной формы
Вычисление периметра помещения:
- Для этого используем рулетку.
- Измеряем длины всех сторон помещения.
- Затем складываем все полученные результаты.
Теперь вы знаете, какие подготовительные работы нужно провести, перед тем как рассчитать реечный потолок.
Расчет реечной системы
После произведенных замеров и вычислений можно приступать к расчету комплектующих реечного потолка.
- Первым делом вычисляем количество необходимых угловых профилей. Для этого делим длину периметра помещения на длину одного профиля. Например, периметр комнаты 30 метров, длина профиля 3 метра. Делим 30 на 3 и получаем, что количество необходимых профилей – 10.
- Однако тут приведен идеальный вариант, когда не требуется подрезка материала и не остается отходов.
Такое встречается редко, поэтому материал необходимо покупать с запасом в 2-3 профиля.
- Далее рассчитываем количество необходимого крепежа. Для этого делим длину периметра потолка на шаг крепления углового профиля.
- Следующим шагом будет расчет необходимого количества несущих шин.
- Составляем точную схему потолка помещения. Далее на ней рисуем расположение несущих шин. Их размещают с шагом один метр.
В случае простого прямоугольного помещения, ширина которого составляет не более 3,7 метра.
Расчет выглядит следующим образом:
- Например: длина 5.5 метра, шаг 1 метр.
- Длина помещения делится на шаг профилей.
- Получаем количество несущих шин – 5,5 штук.
Итак:
- Определяем количество регулируемых подвесов. На одну целую шину необходимо 4 подвеса. Следовательно, умножаем эту цифру на количество необходимых нам шин.
- Вычисляем количество декоративных реек. В первую очередь вычислим площадь самой рейки. Для этого нужно её длину умножить на ширину. Длина типовой рейки 3 метра, ширина 0.10 метра. Следовательно, площадь рейки составляет 0.3 м2
- Далее делим площадь потолка на площадь одной планки. В результате получаем необходимое количество планок.
Тут необходимо учесть, что полученная цифра это абсолютный необходимый минимум. Поэтому рейки лучше покупать с запасом 10-15%.
Декоративные рейки закрытого типа
На этом расчет потолка реечного можно считать законченным. В статье мы постарались осветить все важные моменты расчета. Подробно остановились на подготовительных работах. Разобрали моменты правильного расчета площади помещения, так как на этом этапе совершается большое количество ошибок.
Затронули расчет необходимого количества комплектующих реечного потолка.
После прочтения данной статьи у вас больше не должно остаться вопросов о том, как рассчитать реечный потолок.
Калькулятор площади помещения
Введите общие размеры помещения
Онлайн-калькулятор — программа, используя которую легко рассчитать периметр любых комнат, площадь стен, пола и потолка. Необходимость в расчёте встаёт при ремонте квартиры, когда есть потребность в определении количества стройматериала, который нужен для проведения ремонтных работ.
При стандартной конфигурации комнаты, рассчитать её площадь с применением калькулятора нетрудно. Следует внести в него параметры помещения, и размеры проёмов. Сложнее произвести вычисления, если есть выступы — необходимо будет их тоже замерить, и полученные цифры занести в калькулятор.
В нашей обзорной статье вы ознакомитесь с понятием — что такое онлайн-калькулятор, узнаете, как рассчитать площадь помещения, стен, пола. Кроме того, мы расскажем, как производить данные вычисления без калькулятора, по формулам, или используя подручные средства.
Как посчитать площадь стен
Чтобы определить площадь стен, нужно знать, как рассчитать периметр комнаты. Определение площади часто требуется для закупки всевозможных материалов для отделки. Кроме длины и ширины помещения, понадобится выяснить высоту комнаты, а также габариты проемов двери и окон.
При расчетах стоит учитывать, что высота потолков даже в одном помещении может варьироваться, особенно если комната мансардного типа. Отдельно вычисляются значения всех стен, а затем их них отнимаются оконные и дверные проемы.
Точные значения можно выявить с помощью калькулятора расчета площади стен комнаты. Иногда требуется определить объем помещения. В такой ситуации необходимо перемножить три значения: длину, ширину и высоту комнаты. Данный показатель меряется в кубических метрах.
Если помещение имеет разноуровневое зонирование, то можно провести такие расчеты:
- померить все участки стен. Замеры рекомендуется выполнять поближе к потолку;
- вычислить показатели площади по полу;
- на каждом вертикальном участке необходимо промерить длину и высоту, а затем данные значения перемножить;
- прибавьте показатели к значению пола.
У каждой комнаты есть оптимальные параметры, которые можно учитывать при планировке строительного объекта. Минимальный показатель жилого помещения равняется 8 кв. м. Комната общего назначения, такая как зал или гостиная может иметь площадь от 14 до 25 кв. м. Минимальный показатель высоты помещения составляет 240 см. Если потолок более трех метров, то такое пространство сложнее обогревать. Кухня должна иметь площадь не менее 6 кв. м.
Правильное вычисление площади помещения является гарантией качественного проведения ремонта. Такой подход позволит свести к минимуму затраты на приобретение материалов.
При расчете количества необходимых отделочных материалов для ремонтных работ необходимо знать такую величину, как площадь стен. Это нужно для того, чтобы расходных материалов оказалось ни меньше, ни намного больше, чем нужно. Чтобы посчитать площадь стен, необязательно прибегать к услугам замерщиков. Можно сделать все самостоятельно и вспомнить школьную программу по геометрии, где упоминаются формулы по нахождению площадей. Если же отношения с геометрией не заладились, то данная статья обязательно поможет найти нужную величину, разложив все по полочкам.Алгоритм расчета площади стен Чтобы посчитать площадь стен, нужно заглянуть в учебник по математике и отыскать формулы нахождения периметра и площади геометрических фигур. Для расчета площади стен комнаты прямоугольной формы можно воспользоваться удобным алгоритмом:
- Измеряем длину и ширину комнаты. Если комната прямоугольная, то нужно измерить длину двух прилегающих стен. Этих величин для расчета периметра будет достаточно.
- Вычисляем периметр комнаты. Для этого воспользуемся формулой P=(a+b)×2, где a и b — длина и ширина стен. Чтобы найти периметр комнаты нестандартной планировки, нужно просто сложить ширину всех стен.
- Измеряем высоту комнаты. Расстояние от пола до потолка можно измерить по углу комнаты. Это и будет ее высота.
- Находим площадь стен. Чтобы посчитать площадь стен, нужно воспользоваться формулой S=P×h, где h — высота комнаты.
Например:
- ширина одной стены — 4 м;
- ширина другой — 3 м;
- высота комнаты — 2,5 м.
Тогда P=(4+3)×2=14 м; а S=14×2,5=35 м². Но это еще не все. В комнате существует площадь, отделывать которую не нужно. Это площадь окон и дверей. Посчитать площадь стен нужно с учетом этих величин, чтобы получить более точный результат. Для этого от площади стен нужно отнять площадь окон и площадь дверей. Например, в комнате одно окно 1,3×1,5 м и одна дверь 61×192 см. Тогда площадь окна будет равна 1,95 м², а площадь двери 1,1712 м². Складываем эти две величины и вычитаем от площади стен: 35-(1,95+1,1712) ≈ 32 м².
Если комната нестандартная
Если комната отличная от прямоугольной формы, то посчитать площадь стен дома можно и другим способом. Для этого нужно высчитать площадь каждой стены в отдельности и сложить полученные результаты, предварительно вычесть площадь имеющихся в стенах окон и дверей. Формула будет иметь вид S=S1+S2+S3+S4.
В специальной документации, или техническом паспорте, должны быть указаны и площадь, и периметр как всей квартиры, так и размеры отдельных комнат. Если такая «бумажка» отсутствует, то посчитать площадь стен можно и своими силами. Не зря же нас в школе учили!
При осуществлении ремонта жилого дома требуется вычислить площадь каждой его комнаты. Это поможет закупить строительные материалы в нужном количестве и правильно подсчитать бюджет ремонтных работ. Как правило, при наличии нехитрых инструментов измерить площадь любого помещения не составит никакого труда.
Рассчитать площадь пола
По полу так же можно рассчитать площадь помещения. При этом лучше, чтобы все стены в нём и пол были свободны. Если комната прямоугольная, следует просто перемножить размеры двух сторон пола. Но даже в таком случаи, они могут иметь небольшие различия в размере, поэтому надо снять мерки со всех сторон пола. Нужно делать замеры по поверхности пола, не рекомендовано замерять по стенкам — они могут иметь неровности.
При неправильной конфигурации помещения, пол делится на правильные фигуры. После чего, считается размер каждой фигуры. Для наглядности рекомендовано нарисовать схематичный чертёж со всеми размерами. Если пол двухуровневый, его так же необходимо зонировать.
Предназначение вычислений размера пола играет важную роль. Допустим, если расчёт требуется для установки тёплого пола, то нет надобности учитывать места, где будет размещаться тяжёлая мебель. А если для определения — сколько необходимо напольного покрытия, чтобы застелить всю поверхность пола — то высчитывается размер в полном объёме.
При расчёте габаритов, нет надобности в соблюдении размеров до сантиметра, допустимо производить округления. Проверить, правильно ли вы подсчитали площадь пола можно на онлайн-калькуляторе.
Подготовка к расчетам
Прежде чем производить вычисления, следует подготовить место для измерений. В основном, такие расчёты производятся во время строительства жилых домов, при отделке новостроек, или в квартирах при поведении ремонтных работ, но тогда лучше комнату освободить полностью.
Кроме этого, нужно запастись инструментами — рулеткой (лучше лазерной), линейкой — для проверки прямых линий, маркером и скотчем. Можно применять самодельные принадлежности — отрезок шнура, который привязывается к заострённому штырю.
Перед измерениями надо начертить схематичный план, он позволит сделать замеры точней. Длину сторон нужно измерять вдоль стен, при помощи рулетки. Результаты следует сразу заносить в чертёж. Рекомендовано проверять прямоугольность комнаты, путём замера диагональных линий. Заметим, что в большинстве своём измерительные инструменты имеют две шкалы — метрическую и дюймовую.
Чтобы избежать ошибки и неточности, лучше делать замеры два раза. Лента рулетки при замере должна быть в натяжку, а не провисать. Данные сразу записывать в м. кв, округляя значения до сантиметра.
Если расчёт вы будите делать по формуле, без калькулятора, то надо понимать, что многие такие вычисления трудоёмкие, и сделать подсчёт без ошибок сложно. Поэтому, рекомендуется пользоваться программой Excel.
Формулы для площадей четырехугольников
| Четырехугольник | Рисунок | Формула площади | Обозначения |
| S = ab | a и b – смежные стороны | ||
d – диагональ,φ – любой из четырёх углов между | |||
S = 2R2 sin φ Получается из верхней формулы подстановкой d=2R | R – радиус ,φ – любой из четырёх углов между | ||
S = a ha | a – сторона,ha – , опущенная на эту сторону | ||
S = absin φ | a и b – смежные стороны,φ – угол между ними | ||
d1, d2 – , φ – любой из четырёх углов между ними | |||
| S = a2 | a – сторона квадрата | ||
| S = 4r2 | r – радиус | ||
d – квадрата | |||
S = 2R2 Получается из верхней формулы подстановкой d = 2R | R – радиус | ||
S = a ha | a – сторона,ha – , опущенная на эту сторону | ||
S = a2 sin φ | a – сторона,φ – любой из четырёх углов ромба | ||
d1, d2 – | |||
S = 2ar | a – сторона,r – радиус | ||
r – радиус ,φ – любой из четырёх углов ромба | |||
a и b – основания,h – | |||
| S = m h | m – ,h – | ||
d1, d2 – , φ – любой из четырёх углов между ними | |||
a и b – основания,c и d – боковые стороны | |||
| S = ab sin φ | a и b – неравные стороны,φ – угол между ними | ||
a и b – неравные стороны,φ1 – угол между сторонами, равными a ,φ2 – угол между сторонами, равными b. | |||
S = (a + b) r | a и b – неравные стороны,r – радиус | ||
d1, d2 – | |||
| Произвольный выпуклый четырёхугольник | d1, d2 – , φ – любой из четырёх углов между ними | ||
, | a, b, c, d – длины сторон четырёхугольника,p – , Формулу называют «Формула Брахмагупты» |
S = ab гдеa и b – смежные стороны | |
гдеd – диагональ,φ – любой из четырёх углов между | |
S = 2R2 sin φ гдеR – радиус ,φ – любой из четырёх углов между Формула получается из верхней формулы подстановкой d = 2R | |
S = a ha гдеa – сторона,ha – , опущенная на эту сторону | |
S = absin φ гдеa и b – смежные стороны,φ – угол между ними | |
гдеd1, d2 – , φ – любой из четырёх углов между ними | |
| S = a2 гдеa – сторона квадрата | |
| S = 4r2 гдеr – радиус | |
гдеd – квадрата | |
S = 2R2 гдеR – радиус Получается из верхней формулы подстановкой d = 2R | |
S = a ha гдеa – сторона,ha – , опущенная на эту сторону | |
S = a2 sin φ гдеa – сторона,φ – любой из четырёх углов ромба | |
гдеd1, d2 – | |
S = 2ar гдеa – сторона,r – радиус | |
гдеr – радиус ,φ – любой из четырёх углов ромба | |
гдеa и b – основания,h – | |
S = m h гдеm – ,h – | |
гдеd1, d2 – , φ – любой из четырёх углов между ними | |
гдеa и b – основания,c и d – боковые стороны | |
S = ab sin φ гдеa и b – неравные стороны,φ – угол между ними | |
гдеa и b – неравные стороны,φ1 – угол между сторонами, равными a ,φ2 – угол между сторонами, равными b. | |
S = (a + b) r гдеa и b – неравные стороны,r – радиус | |
гдеd1, d2 – | |
| Произвольный выпуклый четырёхугольник | |
гдеd1, d2 – , φ – любой из четырёх углов между ними | |
, гдеa, b, c, d – длины сторон четырёхугольника,p – Формулу называют «Формула Брахмагупты» |
S = ab гдеa и b – смежные стороны |
гдеd – диагональ,φ – любой из четырёх углов между |
S = 2R2 sin φ гдеR – радиус ,φ – любой из четырёх углов между Формула получается из верхней формулы подстановкой d = 2R |
S = a ha гдеa – сторона,ha – , опущенная на эту сторону |
S = absin φ гдеa и b – смежные стороны,φ – угол между ними |
гдеd1, d2 – , φ – любой из четырёх углов между ними |
S = a2 гдеa – сторона квадрата |
S = 4r2 гдеr – радиус |
гдеd – квадрата |
S = 2R2 гдеR – радиус Получается из верхней формулы подстановкой d = 2R |
S = a ha гдеa – сторона,ha – , опущенная на эту сторону |
S = a2 sin φ гдеa – сторона,φ – любой из четырёх углов ромба |
гдеd1, d2 – |
S = 2ar гдеa – сторона,r – радиус |
гдеr – радиус ,φ – любой из четырёх углов ромба |
гдеa и b – основания,h – |
S = m h гдеm – ,h – |
гдеd1, d2 – , φ – любой из четырёх углов между ними |
гдеa и b – основания,c и d – боковые стороны, |
S = ab sin φ гдеa и b – неравные стороны,φ – угол между ними |
гдеa и b – неравные стороны,φ1 – угол между сторонами, равными a ,φ2 – угол между сторонами, равными b. |
S = (a + b) r гдеa и b – неравные стороны,r – радиус |
гдеd1, d2 – |
| Произвольный выпуклый четырёхугольник |
гдеd1, d2 – , φ – любой из четырёх углов между ними |
гдеa, b, c, d – длины сторон четырёхугольника,p – Формулу называют «Формула Брахмагупты» |
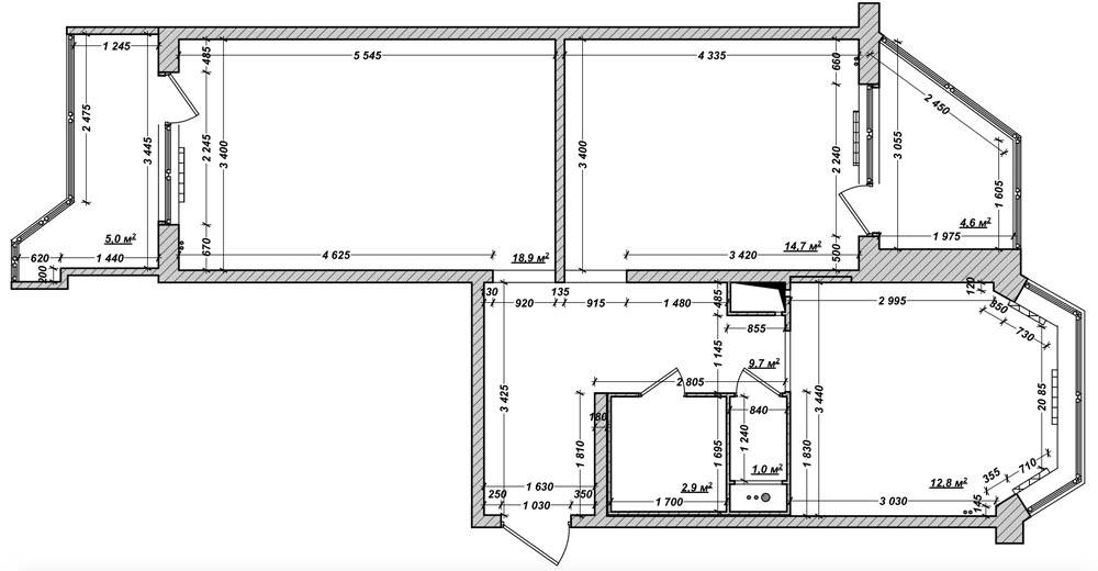
Как высчитать площадь комнаты, в которой есть в наличии ниши и выступы?
Что делать, если в помещении имеются различные ниши или колонны, которые не могут быть скрыты или демонтированы? В этом случае с подсчетами придется немного повозиться, так как из значений общей площади придется вычислять те показатели площадей, которые занимают эти самые колонны, и добавлять к результату площадь каждой ниши.
Расчет площади комнаты с вырезом
Удобнее всего в этом случае на бумаге изобразить точную форму комнаты с указанием всех выступов, ниш и колонн. Далее производятся замеры длинных и ровных сторон помещения и записываются в соответствующем месте на листочек. После этого измеряется периметр каждой колонны и по выше указанной формуле (S = A х B) высчитывается площадь каждой колонны. Далее отдельными блоками по такому же принципу вычисляются параметры площади каждой ниши.
Далее все просто – считается основная площадь, т. е. длина и ширина самых длинных стен перемножаются. От полученного значения вычитаются площади колонн, а затем к результату прибавляются показатели площадей ниш. Получаем точную площадь всей комнаты.
В отдельных случаях (например, комната выполнена в форме буквы «Г») можно визуально разбить помещение на несколько ровных фигур (например, прямоугольников), снять мерки каждой фигуры отдельно, затем вычислить площадь каждого элемента и суммировать все полученные значения.
Г-образная квартира-студия





































